Situada en la última planta de un edificio representativo de 1900, esta vivienda ofrece una oportunidad única en una de las direcciones más codiciadas de Madrid. El inmueble se encuentra en un elegante edificio de fachada clásica, con un portal excepcionalmente cuidado que conserva elementos históricos como la entrada de carruajes, la escalera de madera y el servicio de portería.
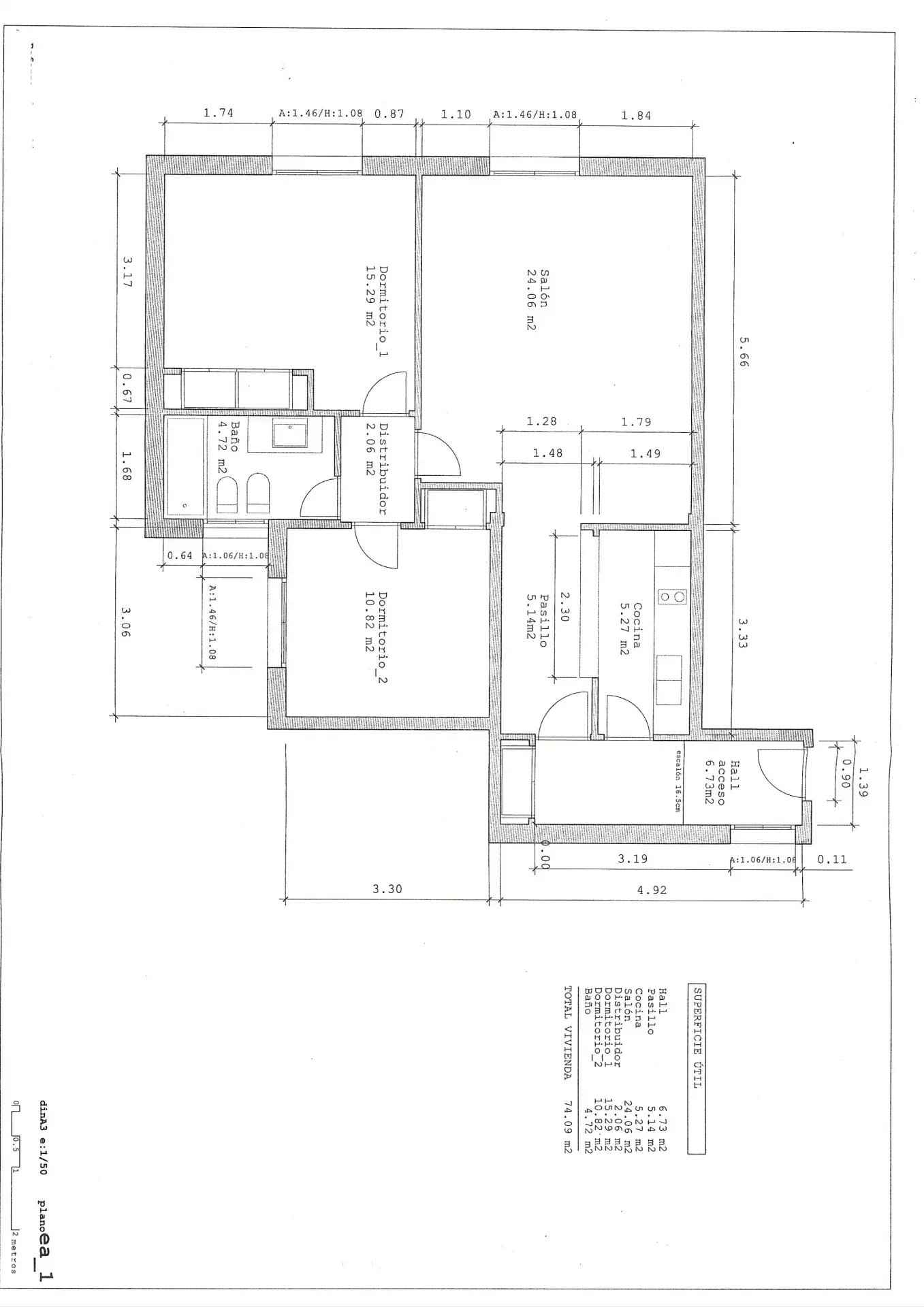
El ático destaca por su luminosidad y su cómoda distribución actual, que comprende un amplio salón con cocina abierta, conformando un espacio diáfano de gran atractivo. La vivienda cuenta con dos dormitorios y un baño, configurando una planta equilibrada tanto para uso residencial como para inversión.
La notable altura de techos, especialmente en la zona central donde los espacios abuhardillados alcanzan aproximadamente 3,40 metros, aporta amplitud, carácter y un encanto singular a la propiedad.
Gracias a su emplazamiento en la planta superior, la luz natural es una de sus grandes virtudes. Todas las estancias se orientan hacia un amplio patio de manzana, ofreciendo agradables vistas al jardín del Hotel Único y garantizando un ambiente tranquilo en pleno corazón de Serrano.
Una propiedad exclusiva, llena de carácter y posibilidades, perfecta para quienes buscan una pieza única en la Milla de Oro.