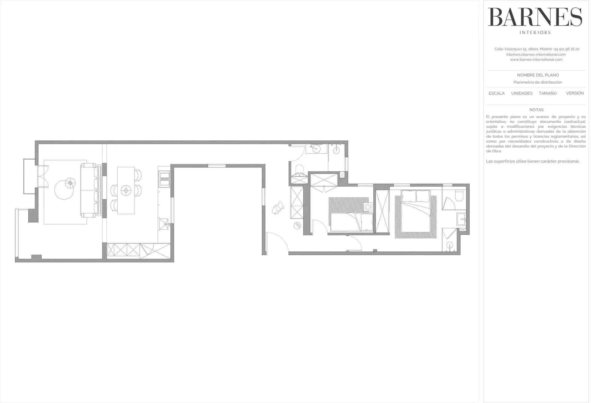
BARNES Madrid vende este espectacular piso exterior amueblado de 104 m² en el distrito de Chamberí, barrio de Almagro.
Ubicado en una quinta planta de un elegante edificio clásico de 1926 con ascensor y portero, esta lujosa propiedad a estrenar combina el encanto histórico con acabados y comodidades de alta gama. Se entrega completamente amueblado con piezas de firmas italianas de prestigio como B&B Italia, Lema y Porada.
Destaca por su luminosidad gracias a su orientación sureste y sus amplios ventanales. Su distribución incluye dos dormitorios —uno de ellos en suite— y dos baños completos, todos con acabados de máxima calidad. Los suelos de madera natural, la calefacción por suelo radiante y el sistema de climatización Daikin frío-calor aseguran confort durante todo el año.
El interiorismo ha sido realizado por el estudio BANNI, que ha dotado al espacio de un estilo sofisticado y funcional. La cocina de alta gama BANNI–Arclinea, equipada con electrodomésticos Siemens Studio Line, se integra de forma elegante en el salón comedor manteniendo su independencia visual. Los baños, también diseñados por BANNI, reflejan una estética moderna y cuidada.
El barrio de Almagro se caracteriza por sus edificios señoriales, su tranquilidad y la cercanía a exclusivas galerías, restaurantes y servicios. Una oportunidad única para quienes buscan un hogar distinguido en el corazón de Madrid.
Para más información, puede consultar nuestra página web https://www.barnes-madrid.com/es, donde encontrará una cuidada selección de pisos exclusivos en Chamberí, así como consultar otras viviendas premium en Madrid similares.