BARNES Madrid presenta un piso de 323 m² en cuarta planta, orientación sur, dentro de una finca clásica. Se ubica en un edificio de 1947 con fachada representativa y servicio de conserjería, en el corazón de Recoletos, una de las zonas más prestigiosas del Barrio de Salamanca.
La vivienda se entrega totalmente reformada, con una reforma integral de primeras calidades y amueblada al detalle. El proyecto prioriza la luz natural y la funcionalidad, con materiales y equipamientos propios del segmento más exigente del real estate de lujo en Madrid.
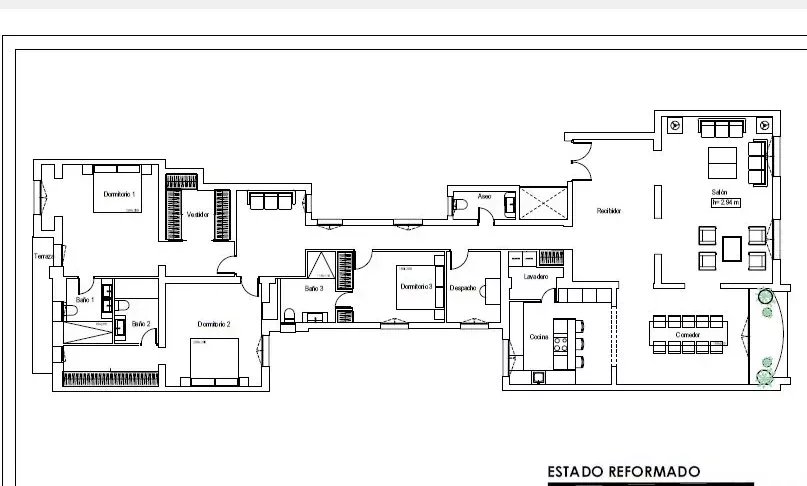
La distribución incluye cuatro dormitorios, todos con baño en suite, además de un aseo de invitados. Destacan la terraza y las amplias zonas sociales que articulan el salón, el comedor y la cocina, configurando un espacio cómodo para la vida diaria y la recepción. Es una excelente opción para quien busca un piso en Recoletos listo para entrar, dentro de la oferta de pisos de lujo a la venta en Madrid.
Por ubicación y calidades, esta propiedad encaja tanto para quien desea una casa de lujo en Madrid para uso propio como para quienes comparan entre distintas casas de lujo en Madrid dentro de las mejores direcciones. También resulta atractiva para compradores que revisan viviendas de lujo en venta en el distrito de Salamanca por su combinación de valor patrimonial y confort contemporáneo.
Como agencia inmobiliaria en Madrid especializada en el mercado prime, BARNES ofrece una selección cuidada de inmuebles singulares en Salamanca y zonas céntricas. Le invitamos a visitar https://www.barnes-madrid.com/es/comprar-inmobiliaria-de-lujo/recoletos para descubrir más propiedades exclusivas en la capital.