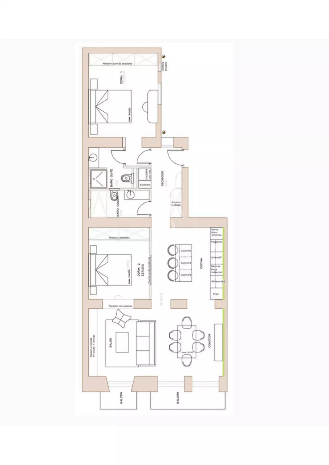
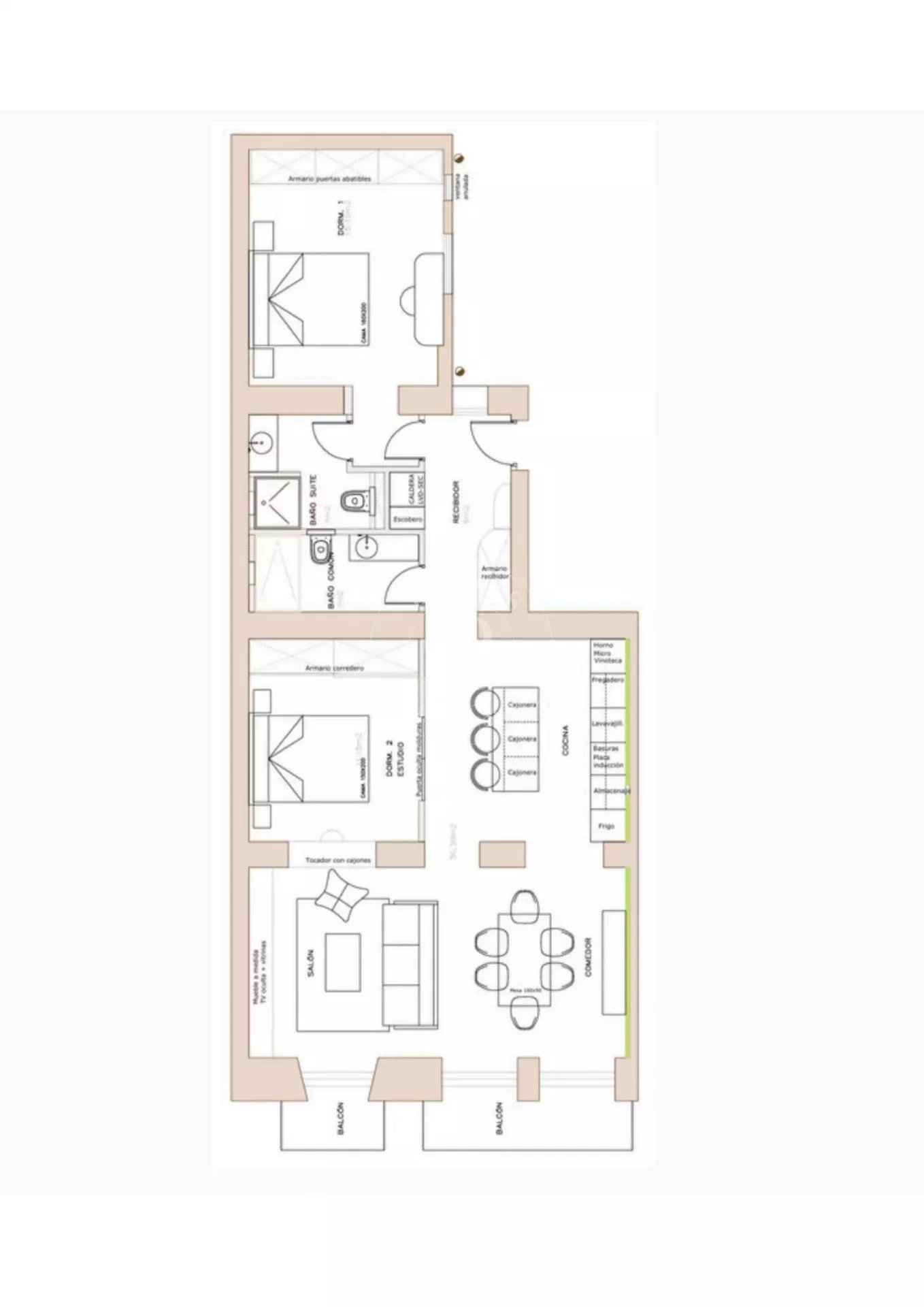
BARNES Madrid presenta este elegante piso exterior completamente reformado, ubicado en un edificio señorial con ascensor y servicio de portero. Situado en una primera planta, la vivienda destaca por su encanto y luminosidad, gracias a sus dos balcones y un agradable mirador con vistas a la calle, que aportan amplitud y una conexión única con el entorno.
El piso ha sido diseñado con una distribución moderna y funcional, ofreciendo un amplio salón con cocina americana integrada y equipada con isla, creando un espacio abierto ideal tanto para el día a día como para recibir invitados. Dispone de dos dormitorios y dos baños completos, incluyendo una suite principal con baño privado. La reforma, de alta calidad, combina elementos clásicos con un estilo contemporáneo, dando lugar a un ambiente sofisticado y acogedor.
Ubicado en una de las zonas más cotizadas de Madrid, el entorno ofrece una excelente calidad de vida con una amplia oferta de comercios, restaurantes, zonas verdes y todos los servicios a pocos pasos. Perfectamente comunicado, combina la tranquilidad residencial con una vibrante vida urbana, destacando especialmente el barrio de Lista como uno de los más demandados de la capital.