BARNES Madrid presenta esta elegante vivienda exterior completamente reformada, situada en una calle tranquila del corazón de Madrid. Se ubica en la primera planta alta de un edificio señorial de 1900 que conserva elementos arquitectónicos originales, como techos altos y fachada clásica, combinados con una cuidada reforma contemporánea de alta calidad.
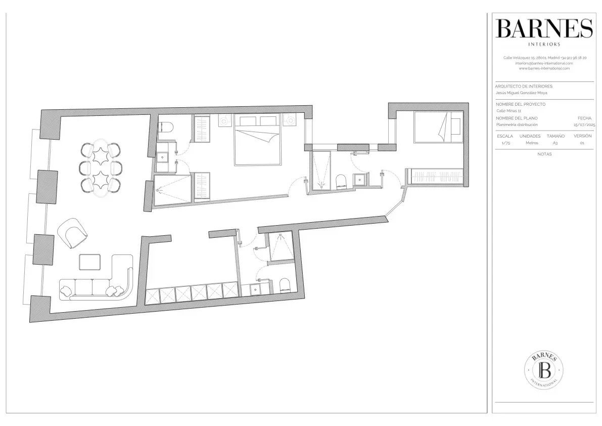
La propiedad ha sido renovada con materiales de primera y se entrega completamente amueblada, lista para entrar a vivir. Al acceder, nos recibe un amplio y luminoso salón-comedor, con tres balcones exteriores que inundan el espacio de luz natural y ofrecen vistas abiertas a la calle. Este ambiente destaca por su sensación de amplitud, calidez y conexión con el entorno urbano.
La cocina, independiente y equipada con electrodomésticos modernos, está diseñada para ofrecer funcionalidad y estilo. Su distribución es práctica y armoniosa, ideal tanto para el día a día como para quienes disfrutan cocinando.
El piso cuenta con dos dormitorios dobles, ambos con baño en suite. El dormitorio principal destaca por su generoso tamaño, diseño elegante y armarios empotrados de gran capacidad. El segundo dormitorio, también muy confortable, puede funcionar perfectamente como habitación de invitados o despacho. Además, la vivienda dispone de un aseo de cortesía con ducha, lo que añade comodidad para visitas.
Una propiedad única que combina el encanto de la arquitectura clásica con el confort moderno, ideal para quienes buscan vivir en una de las zonas más demandadas de Madrid, con todos los servicios, comercios, restaurantes y transporte a pocos pasos.