Esta magnífica propiedad exterior de 276 m² combina serenidad, estilo y funcionalidad en un entorno de lujo y confort. Totalmente reformada y amueblada con materiales y mobiliario de alta calidad, ofrece un equilibrio perfecto entre diseño contemporáneo y elegancia atemporal. Su distribución, cuidadosamente planificada, crea espacios amplios, luminosos y fluidos que invitan a disfrutar de una vida tranquila y sofisticada en el corazón de Madrid.
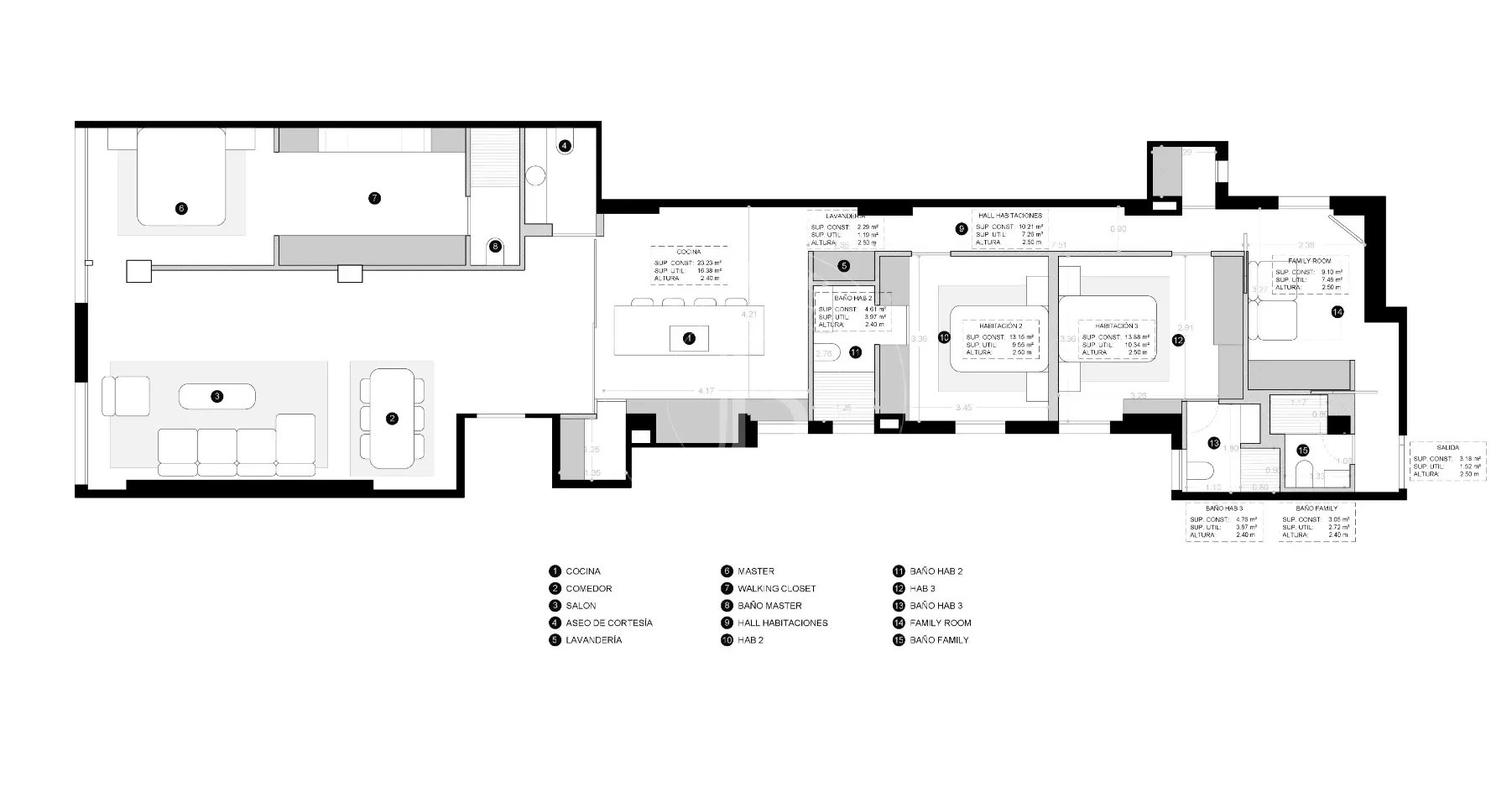
La vivienda alberga cuatro dormitorios y cinco baños, todos diseñados con un gusto exquisito. Tres de las habitaciones cuentan con baño en suite, mientras que el dormitorio principal, completamente exterior, se presenta como una verdadera suite privada. Además, dispone de una estancia polivalente que puede destinarse a despacho, dormitorio de invitados o sala de televisión, también con su propio baño, así como de un aseo de cortesía que completa la distribución.
El amplio salón principal, bañado en luz natural, se conecta armoniosamente con la zona de comedor y la cocina de diseño moderno, equipada con electrodomésticos de alta gama. Cada detalle ha sido pensado para ofrecer el máximo confort, desde la iluminación hasta los acabados.
La propiedad destaca por sus vistas despejadas hacia la emblemática iglesia de Diego de León y por su ambiente de privacidad y exclusividad. En la finca solo hay dos vecinos por planta, lo que garantiza tranquilidad y discreción. Dispone de varias comodidades excepcionales, como una gran plaza de garaje de fácil acceso en la misma finca, trastero en la azotea, múltiples ascensores —incluido un montacargas que comunica con los trasteros— y un servicio de portería activo, que incluye recogida de basuras directamente en la puerta de servicio.
Ubicada en una de las calles más representativas del barrio de Castellana, dentro del prestigioso distrito de Salamanca, esta propiedad goza de una ubicación inmejorable. Rodeada de boutiques de lujo, restaurantes de alta cocina, centros culturales y espacios verdes, combina a la perfección la vida residencial de alto nivel con la vitalidad del centro urbano. Su excelente conectividad con las principales vías y medios de transporte —como la M-30 y el aeropuerto— añade un valor práctico a su atractivo.
Más allá de su belleza y confort, esta vivienda representa una oportunidad única de inversión en una de las zonas más demandadas y con mayor revalorización de Madrid. Un hogar donde la elegancia, la comodidad y la exclusividad se encuentran para ofrecer un estilo de vida incomparable.