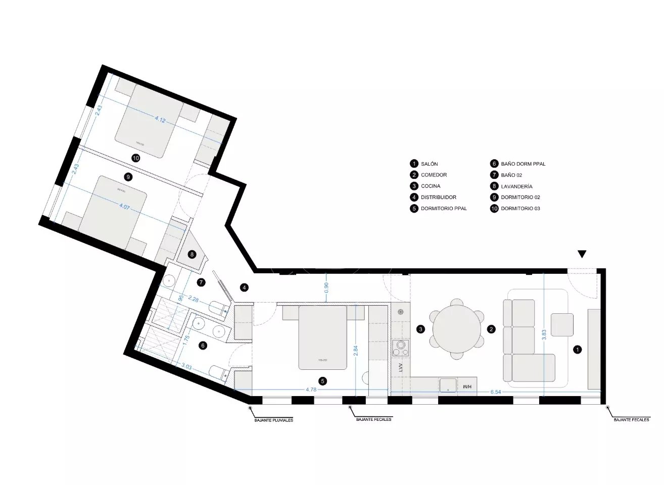
Descubra este piso interior a reformar situado en una sexta planta en la calle García de Paredes, en pleno corazón de Almagro. Con una superficie de 93 m² y techos de tres metros de altura, la propiedad se presenta como un espacio a personalizar, ofreciendo una base arquitectónica elegante y flexible. Su distribución permite configurar hasta tres amplias habitaciones dobles, adaptándose a las necesidades del comprador.
La orientación sur y los techos altos favorecen una excelente entrada de luz natural, reforzada por un amplio patio interior que garantiza sol directo y aporta una agradable sensación de calma. Se trata de un piso con gran potencial, con diversas opciones de distribución y elección de calidades, además de propuestas de reforma disponibles para facilitar la personalización. Existe la posibilidad de gestionar el proyecto con estudios de arquitectura de renombre.
La finca cuenta con ascensor y servicio de conserjería, aportando comodidad y seguridad.
Ubicado en el prestigioso barrio de Almagro, una de las zonas más distinguidas de Madrid, destaca por su arquitectura señorial, su tranquilidad y su excelente oferta cultural y gastronómica. Una ubicación privilegiada ideal para vivir o invertir.