Dans l’une des rues les plus emblématiques du quartier de Justicia, Barnes Madrid propose en exclusivité ce bien au fort potentiel de rénovation, situé dans l’historique Palais des Ducs de Montpensier, dont la façade élégante a récemment été restaurée.
Situé au troisième étage de l’immeuble, l’appartement bénéficie d’une orientation privilégiée qui, associée à sa position d’angle, lui confère une luminosité exceptionnelle tout au long de la journée. Ses six balcons sur rue renforcent encore la sensation d’espace et de connexion avec l’extérieur.
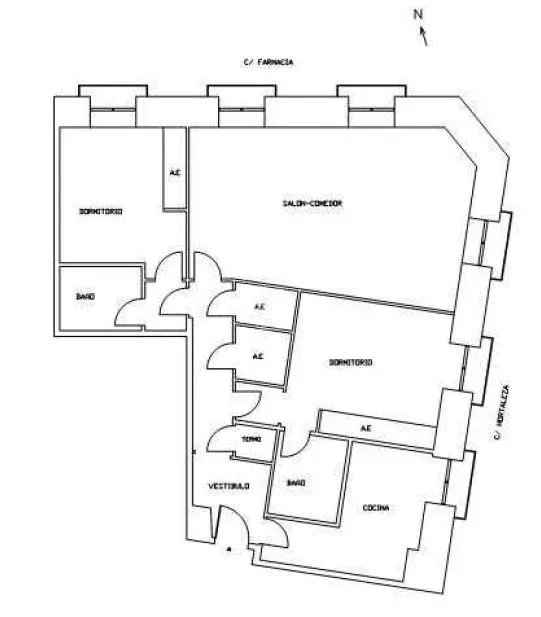
Avec une surface construite de 157 m², actuellement distribuée en 2 chambres avec salles de bains en suite, le plan carré sans murs porteurs offre de nombreuses possibilités de redistribution, notamment la création d’une résidence de trois chambres parfaitement adaptée au style de vie contemporain. Atout supplémentaire : la copropriété dispose de la possibilité d’un parking dans l’immeuble, un avantage rare dans ce secteur.
L’immeuble, de style classique et parfaitement entretenu, illustre le caractère architectural de Justicia, l’un des quartiers les plus sophistiqués et animés de Madrid, entouré de galeries d’art, de restaurants étoilés, de boutiques exclusives et de tous les services de proximité.
Une opportunité unique, idéale comme résidence principale ou comme investissement, dans l’une des adresses les plus prisées de la capitale.