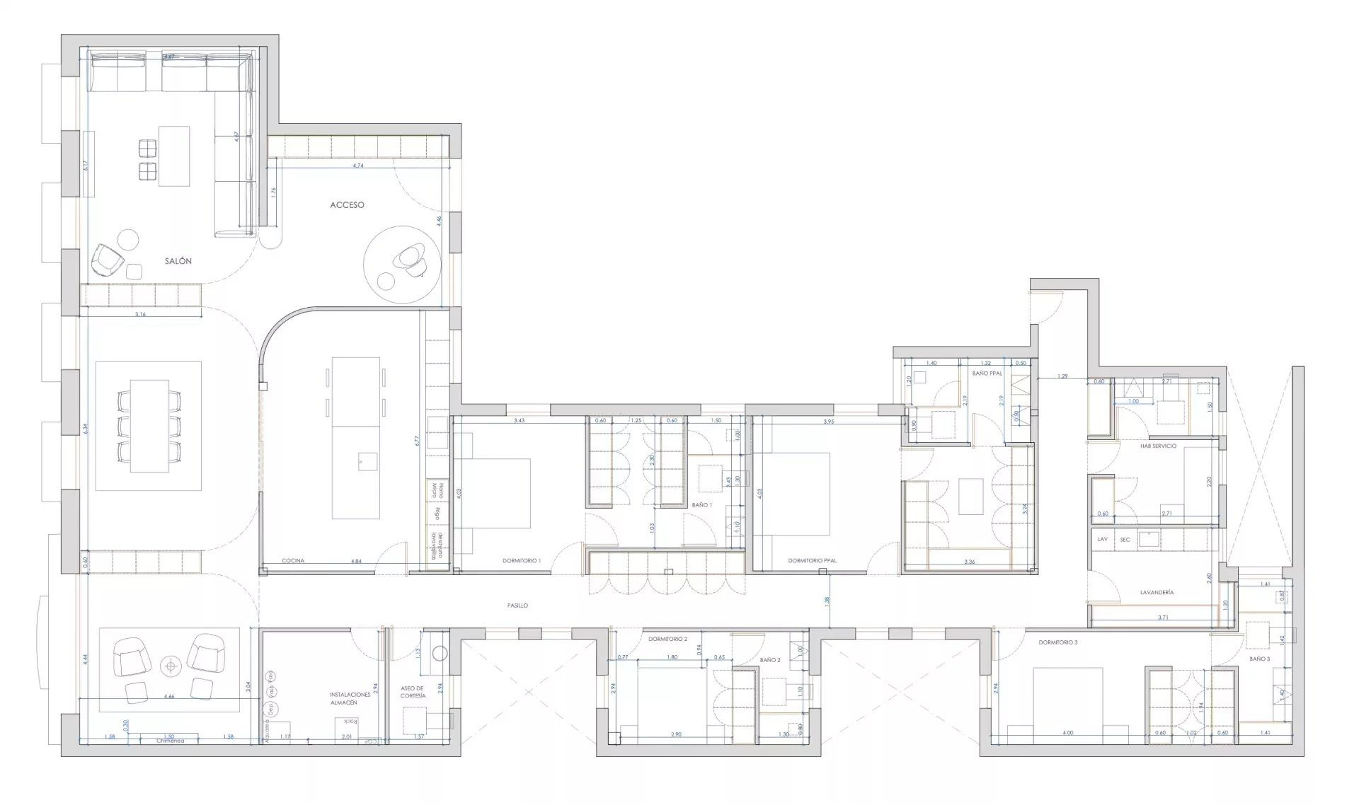
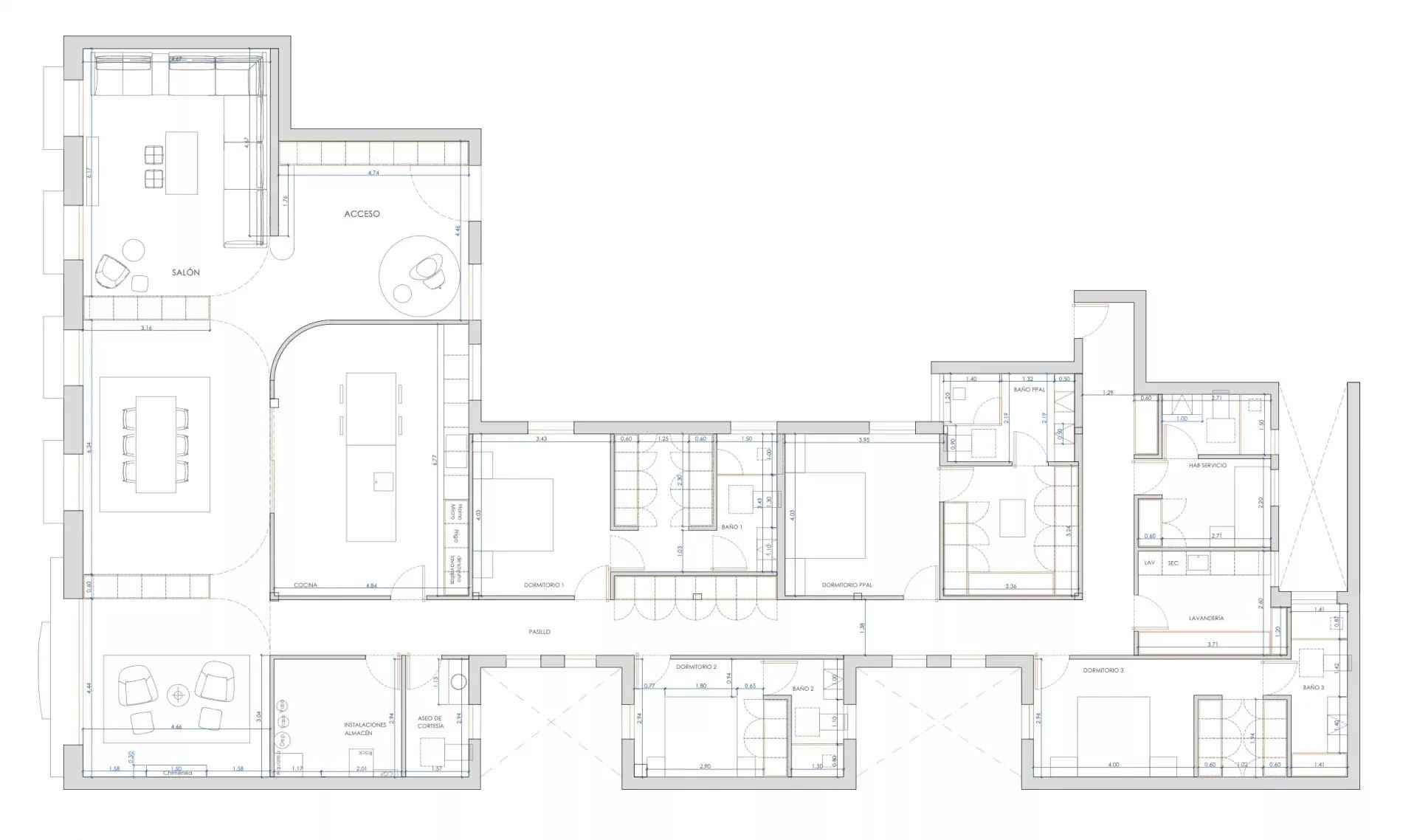
Dès les premiers instants, cette résidence de 421 m² séduit par un hall d’entrée imposant, où une fenêtre classique baigne de lumière l’accès aux vastes espaces de réception. Le salon principal, à la fois solennel et raffiné, s’ouvre sur une salle à manger de caractère et sur un second salon, dominé par une spectaculaire cheminée au gaz, conçue pour envelopper chaque rencontre d’une atmosphère chaleureuse et élégante. Des bibliothèques sur mesure, à la fois pratiques et élégantes, complètent un ensemble qui respire le caractère et la sophistication.
La cuisine, pensée comme une véritable pièce maîtresse, se dissimule derrière une cloison ajourée en verre et aluminium aux reflets cuivrés, un élément architectural qui adoucit la transition avec les salons tout en apportant une subtile touche de modernité. Les portes en verre et aluminium des espaces communs permettent une fluidité et une continuité visuelle remarquables. Entièrement équipée avec les derniers appareils Gaggenau et un mobilier Rimadesio, cette cuisine conjugue design et fonctionnalité au plus haut niveau.
Cinq balcons donnant sur la rue Velázquez inondent la résidence de lumière naturelle tout au long de la journée, sublimant la noblesse des matériaux et la chaleur des finitions. La demeure dispose également d’une salle d’eau pour invités et d’une grande buanderie, garantissant confort et praticité au quotidien. Chaque détail de la rénovation, réalisée avec des matériaux nobles et massifs, exprime une qualité intemporelle et un luxe discret perceptible dans chaque espace.
La partie nuit se compose de cinq chambres en suite, toutes avec leur propre dressing, offrant ainsi indépendance et confort absolus. L’une de ces suites, pensée pour le personnel, conserve la même cohérence esthétique que le reste de la propriété. La domotique de dernière génération, qui contrôle stores et rideaux, transforme le quotidien en une expérience de bien-être total. Une résidence où excellence architecturale et raffinement suprême s’unissent dans l’une des adresses les plus prestigieuses de Madrid.