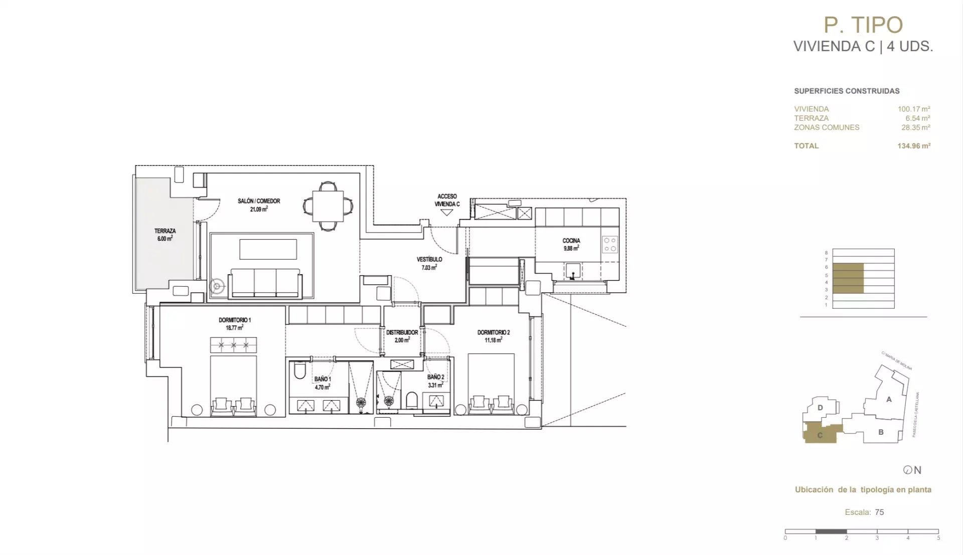
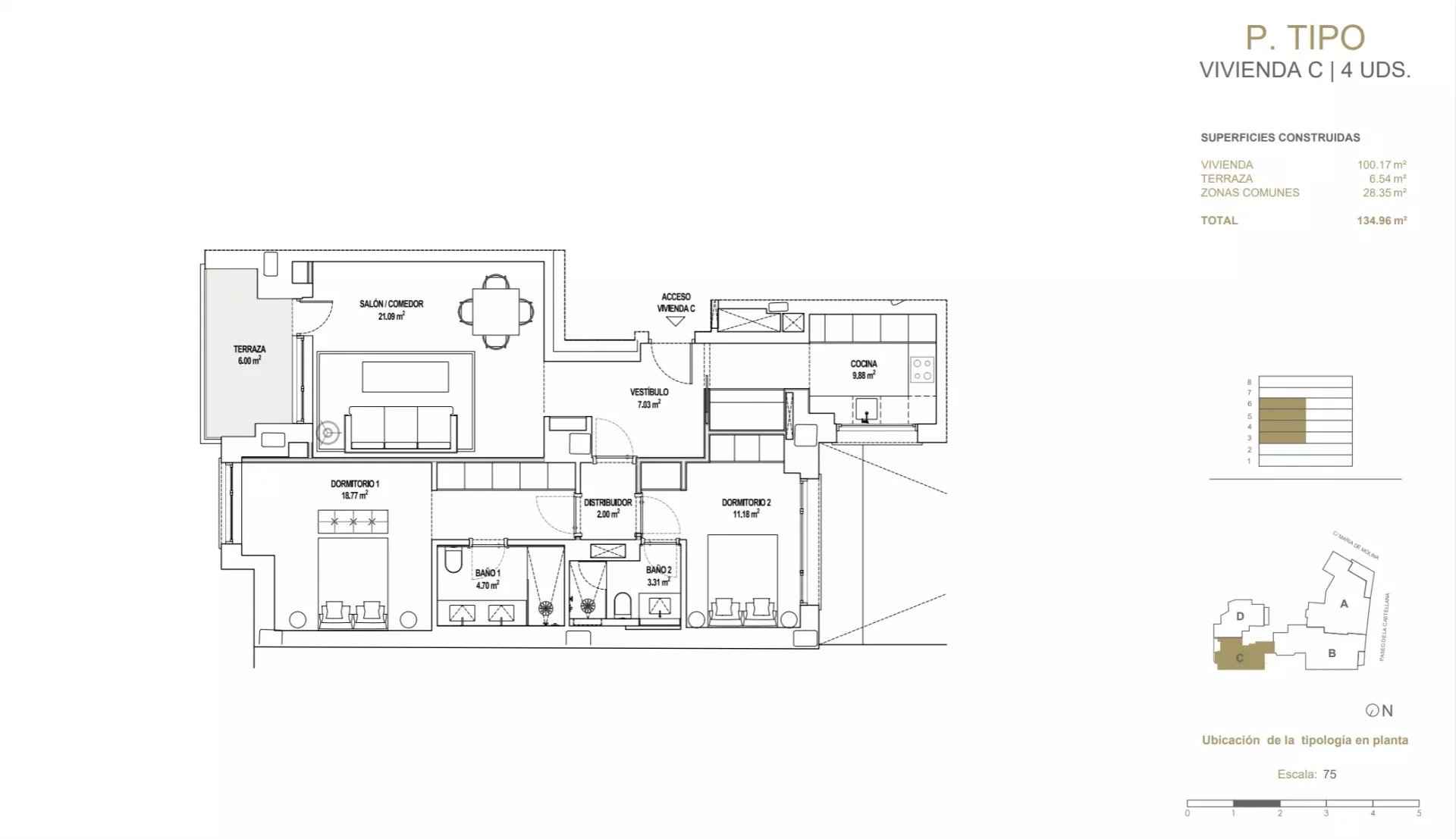
BARNES vous présente la Vivienda C, une résidence deux chambres parfaitement équilibrée située au troisième étage de l’IQONIQ Castellana 68. Offrant 100 m² d’espaces intérieurs et une terrasse privée de 6 m², cet appartement entièrement extérieur marie confort, fonctionnalité et raffinement architectural au sein de l’un des projets résidentiels les plus emblématiques de Madrid.
Dès l’entrée, un vestibule élégant ouvre sur un salon-salle à manger lumineux, prolongé par une terrasse privée idéale pour profiter de la lumière naturelle et d’un cadre de vie paisible en plein cœur urbain. La cuisine, indépendante mais subtilement intégrée au plan général, bénéficie d’une lumière naturelle et d’une disposition efficace, alliant praticité et esthétisme.
La suite principale comprend une chambre spacieuse avec salle de bains privative, conçue comme un véritable espace de repos et d’intimité. Une seconde chambre, située dans la partie nuit via un couloir central, dispose d’une salle de bains complète attenante, permettant une grande souplesse d’usage, que ce soit pour des invités, un membre de la famille ou un bureau élégant.
Chaque mètre carré de cette résidence a été pensé pour améliorer le confort au quotidien, avec des finitions soignées et une circulation fluide entre les espaces. La hauteur sous plafond et les grandes baies vitrées en façade assurent une luminosité constante et une atmosphère apaisante.
Comme pour toutes les résidences de l’IQONIQ Castellana 68, l’appartement bénéficie d’un chauffage et rafraîchissement par le sol, d’un système de climatisation par aérothermie, et donne accès à des services exclusifs tels que la conciergerie 24h/24, un garage robotisé avec recharge pour véhicules électriques, un spa avec espace bien-être, une salle de sport, des salons gastronomiques et des espaces de coworking privés.
Grâce à ses dimensions idéales, son agencement intelligent et son adresse prestigieuse, la Vivienda C offre une opportunité rare de vivre l’expérience Castellana dans un cadre contemporain, connecté et subtilement raffiné.