BARNES Madrid presents this magnificent duplex penthouse for rent, featuring two en-suite bedrooms, ideally located on the prestigious Recoletos street, just steps away from Serrano and Paseo de la Castellana.
Situated on the top floor of a renovated historic building with a representative entrance hall, concierge service and lift, this architectural gem rises in the heart of the Salamanca district, where the elegance of stately buildings meets the sophistication of boutiques, fine dining restaurants and renowned art galleries.
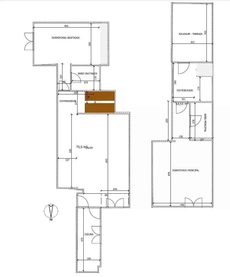
With a surface area of 174 m², the property stands out for its brightness, tranquility and high ceilings, which enhance the sense of spaciousness throughout.
The entrance leads to a large, light-filled living-dining room, ideal for entertaining or enjoying daily life in an elegant setting. The separate kitchen is fully equipped with top-quality appliances, a breakfast table and complete kitchenware.
The penthouse offers two en-suite bedrooms, one on each level:
The first, on the main floor, has large windows, a double bed with storage base, built-in wardrobes, an armchair-sofa bed and a full bathroom with Jacuzzi bathtub.
The second, located upstairs, offers a more private atmosphere with a study area, en-suite bathroom with shower and double sink, and direct access to a charming 17 m² solarium terrace with a glazed roof and automatic opening, perfect for enjoying the outdoors all year round.
The internal staircase connecting both floors includes a practical storage area.
The property is delivered fully furnished and equipped, ready to move into, and benefits from wooden flooring, ducted air conditioning, individual heating, pre-installed alarm system and high-speed fibre optic internet.
Located in one of the most sought-after areas of Madrid, this penthouse allows you to enjoy a unique lifestyle: just a few steps from the Golden Mile, surrounded by luxury brands, fine dining, iconic cafés, gourmet markets, museums and El Retiro Park. Its connection with the rest of the city is excellent thanks to multiple public transport options nearby.
A truly exceptional opportunity to experience Madrid from the top, with style, light and privacy. We invite you to visit it, as well as to discover our selection of unique and exclusive homes on the BARNES website.