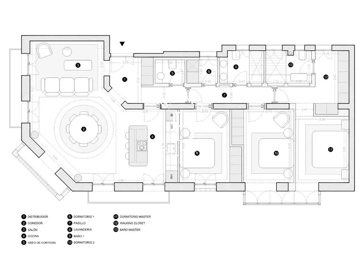
Exterior apartment of 167 m² to renovate, located on the third floor of a classic 1924 building in Ríos Rosas, Chamberí. It is offered as a blank canvas, with 3-metre ceilings, eight west-facing balconies and exceptional natural light. Its chamfered corner layout allows for a wide variety of floor plans. The building, partially protected, stands out for its stately entrance hall, stained-glass windows on the staircase, bay windows with stone balustrades and a classic wooden lift. Only two neighbours per floor and a communal rooftop terrace equipped with loungers and plants. Ríos Rosas is one of the most established areas of Chamberí: residential, safe and quiet, just steps from Plaza de San Juan de la Cruz and Paseo de la Castellana, surrounded by universities, hospitals, offices and cultural venues. A wide range of shops and restaurants, traditional markets and excellent connections by metro and bus. A solid investment, with strong demand for both purchase and rental and sustained appreciation in value.