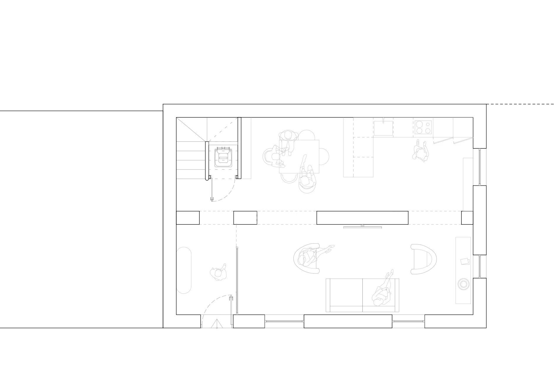
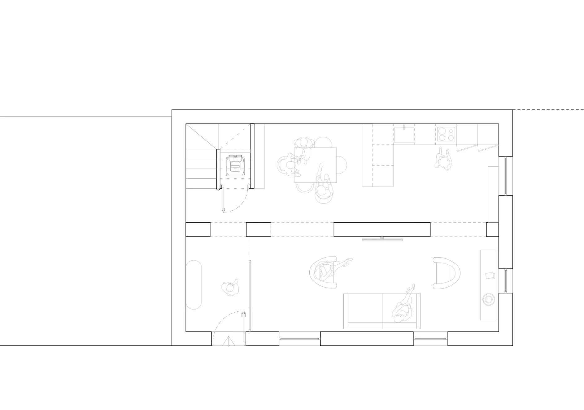
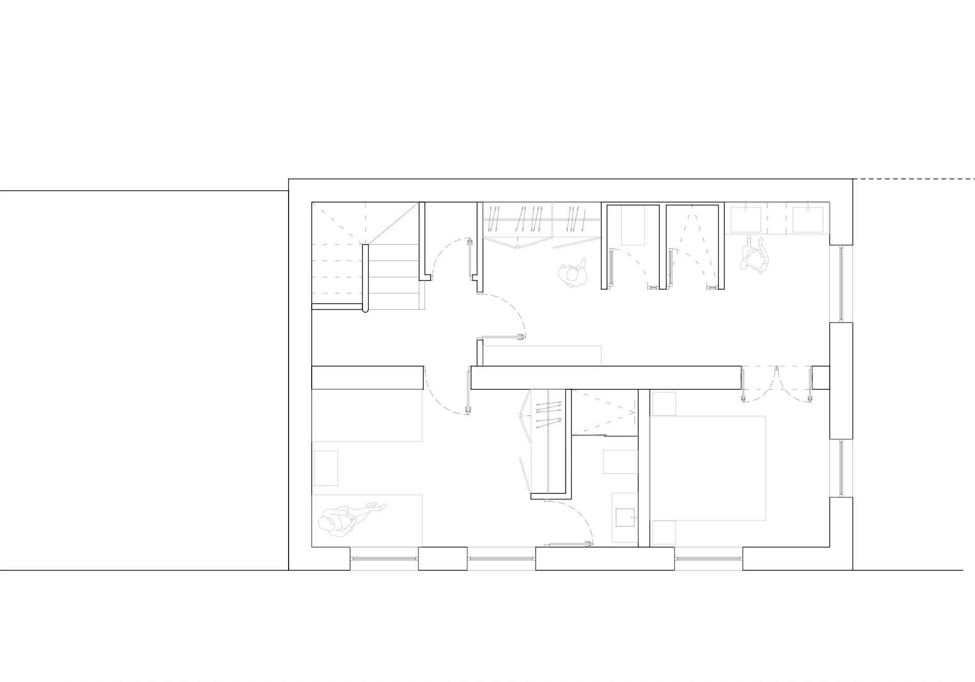
Located in the well-established neighborhood of Prosperidad, within the Chamartín district, this impressive 180 sqm exterior triplex has been fully renovated in 2025. The property is arranged over three levels, offering generous space, functionality, and a modern layout designed for comfortable contemporary living.
The property features two bedrooms and two bathrooms, with well-proportioned and clearly defined living areas. Its southeast orientation ensures excellent natural light throughout much of the day. As an exterior home, it also benefits from a private terrace, providing a valuable outdoor space and a pleasant connection to the surroundings.
The comprehensive renovation has been carried out with a contemporary approach, prioritizing high-quality materials, efficient use of space, and a balance between design and functionality.
Prosperidad is known for its excellent transport connections and close proximity to shops, services, schools, and public transportation. A unique property due to its size, layout, and condition, ideal both as a high-end primary residence or an investment opportunity, in a market where properties of this kind are increasingly scarce.