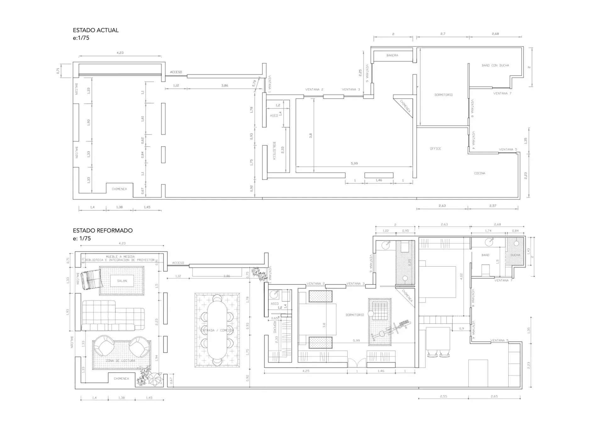
BARNES Madrid presents an extraordinary loft-style apartment facing the serene Jardines de la Plaza de la Villa de París, a coveted gem in Madrid’s prestigious Justicia neighborhood. Recently refurbished with premium materials, this unique property blends modern open-plan living with timeless elegance—perfect for living, working, or entertaining.
Steps from Recoletos and Retiro Park, it offers a countryside-like tranquility amid Madrid’s premier cultural and luxury districts. Two balconies frame stunning views over the lush Jardines de Villa de París park, while a period fireplace, soaring ceilings, and abundant natural light enhance the ambiance. The thoughtful layout begins with a grand entrance hall flowing into an expansive, versatile living space—ideal as a lounge, games area, or TV room—accented by a second antique fireplace. The serene bedroom, complete with a luxurious en-suite bathroom featuring a bathtub and shower, connects seamlessly to this central hub. A sleek stainless-steel kitchen, equipped with high-end appliances and a practical office nook, anchors the interior. Heated floors throughout, brand-new infrastructure (electricity and plumbing), ducted air conditioning, and a 15 sqm attic storage room—extremely practical for additional space—add to its appeal. With very few structural walls, this property allows any buyer to personalize it to their needs in a cost-efficient way.
Nestled in a majestic classical building, its grand architecture—high ceilings, ornate period details, and a stately presence—recalls an era of timeless splendor, now paired with contemporary upgrades. Its unmatched security—near the Supreme Court, Audiencia Nacional, French Embassy, and Policía Nacional—commands a growing premium, ensuring peace and privacy in a rare, fortress-like enclave. With strategic access to Justicia and Recoletos, yet a serene green outlook, this apartment is a scarce find for discerning buyers or investors seeking prestige and value.
Contact BARNES Madrid for a private viewing.