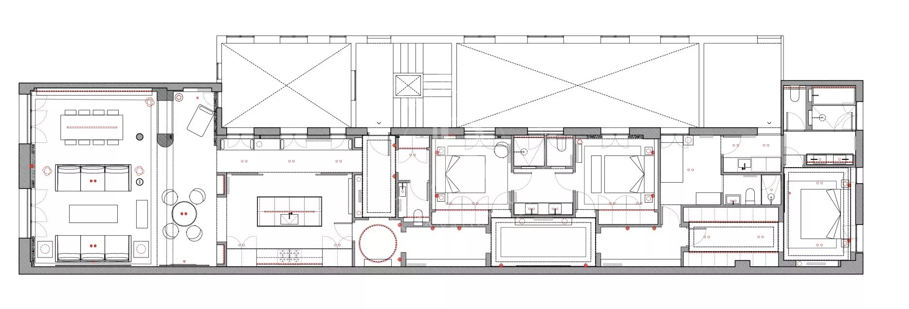
Discover this exclusive renovation-ready apartment in the heart of the prestigious Castellana neighborhood. With 241 m² according to the land registry, 3-meter-high ceilings, and a south-facing orientation, natural light fills every space, enhancing the sense of openness and brightness throughout the home. The abundance of windows ensures excellent ventilation, while the absence of load-bearing walls allows for complete flexibility to adapt the layout to any interior design project. The property offers the possibility to configure up to four spacious bedrooms with en-suite bathrooms and a guest toilet, as well as an open and welcoming social area, perfect for family living or creating modern, functional spaces tailored to your needs.
Apartment to be renovated with excellent potential, offering a variety of layout configurations and finish options tailored to the buyer’s needs, with renovation proposals available to support a fully bespoke transformation.
The apartment is located in an elegant 1920s classic building that combines architectural charm with functional features such as a double elevator, concierge service, central heating, and well-maintained patios. Its structure allows for a fully personalized transformation project, maximizing every corner and adapting it to the owner’s requirements.
Situated in a strategic location, surrounded by shops, services, and excellent public transport connections, this property represents a unique opportunity to create an exclusive designer home in one of the city’s most iconic areas. Its surroundings blend tradition, comfort, and prestige, ensuring a high quality of life with easy access to everything you need.