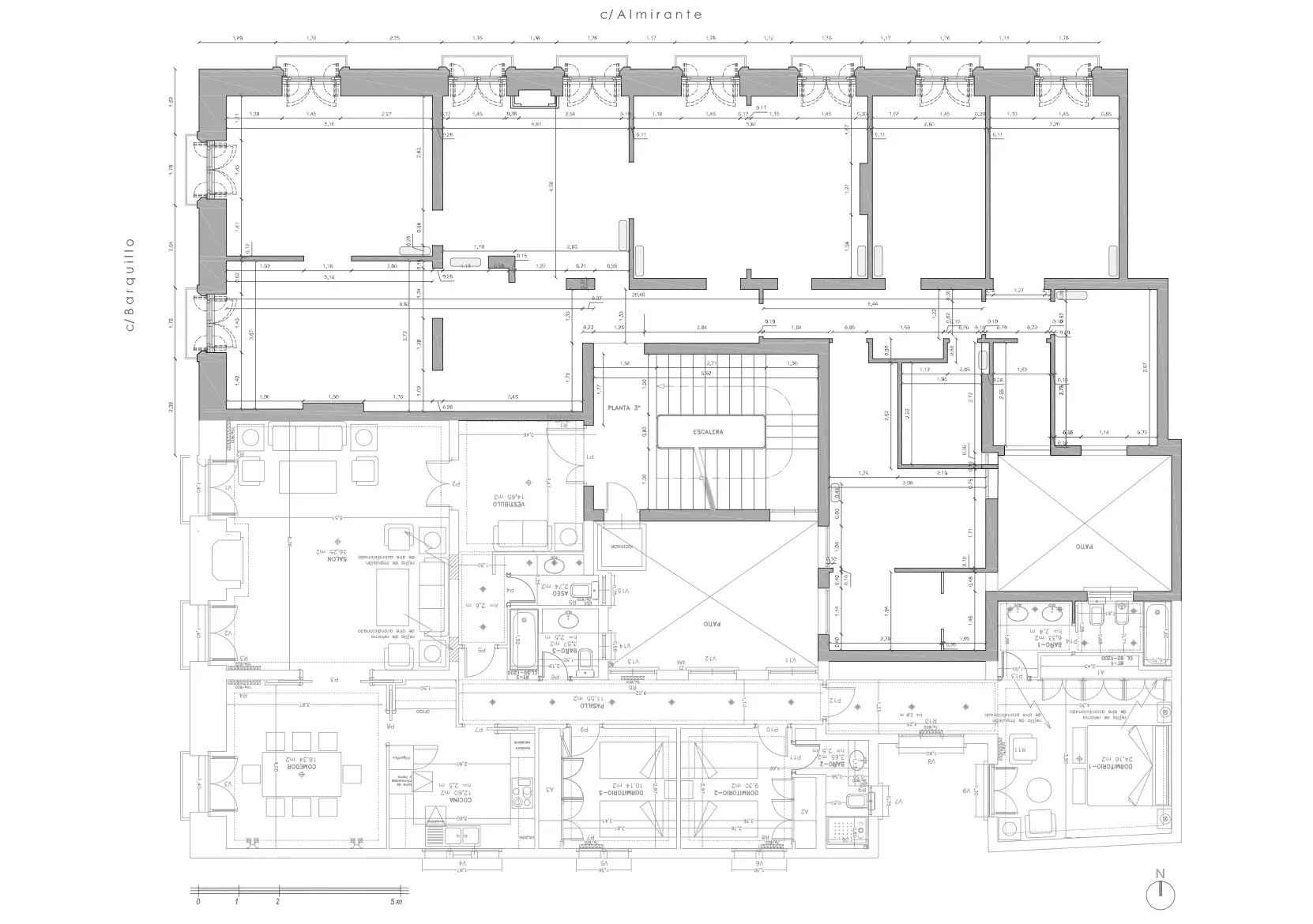
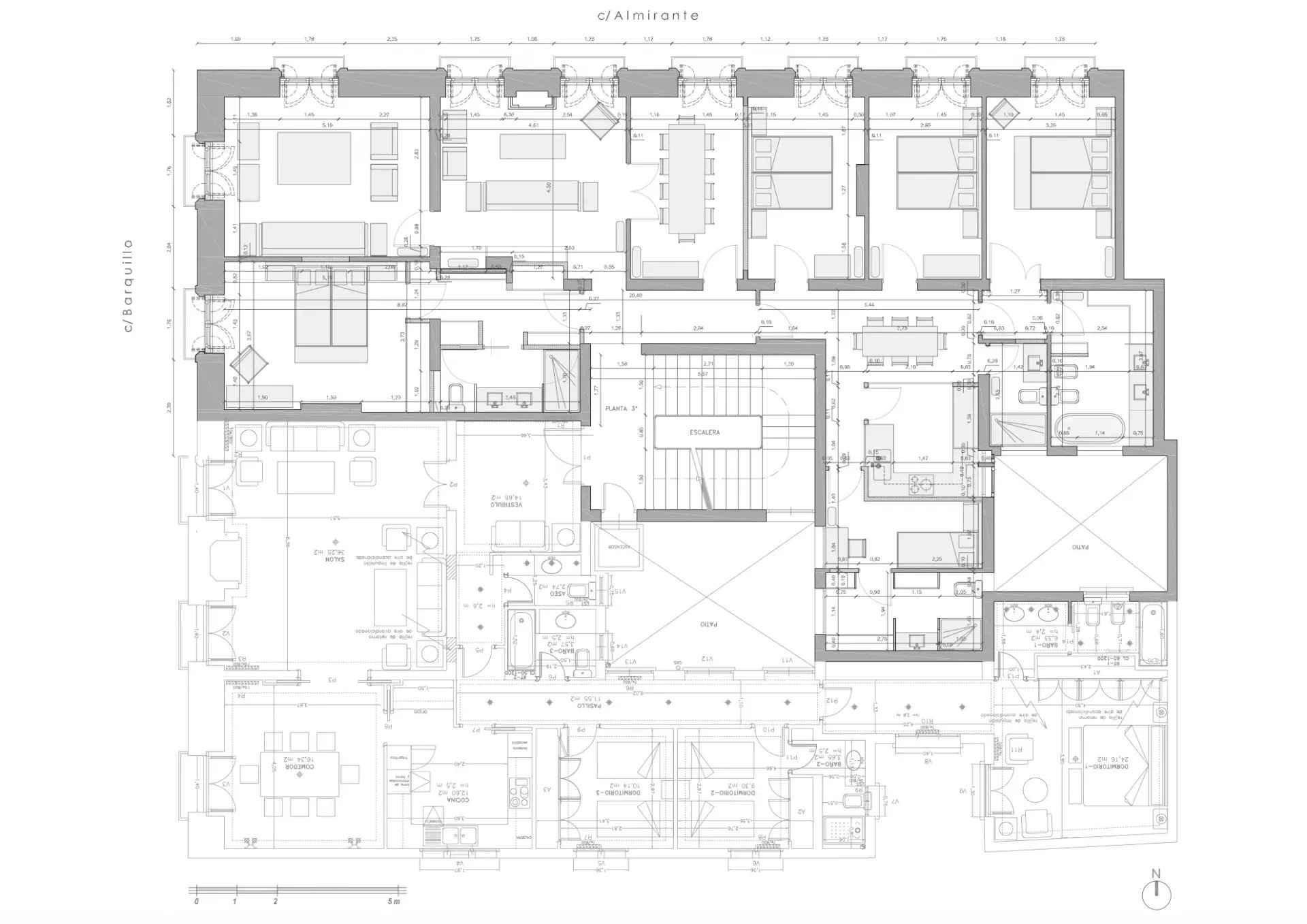
BARNES Madrid is selling this exceptional 272 m² corner apartment located in the prestigious Salamanca district, in the Castellana neighborhood. It is situated on the third floor of a classic building.
The property preserves a functional layout, though it would benefit from a renovation to personalize it while maintaining its historical Madrid charm.
The apartment features nine balconies—seven facing Almirante Street and two overlooking Barquillo Street—and all rooms are exterior-facing, ensuring abundant natural light.
Highlights include 3.2-meter-high ceilings, original wooden flooring, and several fireplaces that add character and personality. With unobstructed views and a privileged location, this property is an ideal option for both residential use and investment.
For more information, please visit our website https://www.barnes-madrid.com/es, where you will find a curated selection of exclusive apartments in Salamanca, as well as other premium properties in Madrid.