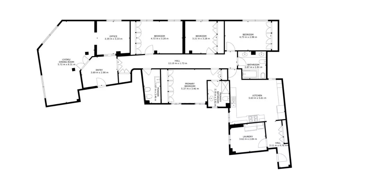
BARNES Madrid sells this extraordinary unfurnished 274 m² apartment located in the Chamberí district, in the Trafalgar neighborhood. This elegant exterior property offers a functional and refined layout, combining spaciousness, natural light, and design details.
It features seven large windows facing the street, bathing every room in natural light. Upon entry, you are welcomed by an elegant entrance hall that opens into a spacious living room and a separate office.
The night area includes four bedrooms, one of which is intended for service, and three full bathrooms with a contemporary and functional design. The fully equipped kitchen includes a breakfast area and a pantry, offering maximum comfort and practicality for everyday living.
Additionally, it includes one parking space and access to resident parking.
The Trafalgar neighborhood is surrounded by services, gourmet restaurants, luxury boutiques, and excellent public transport connections.
The images have been created using virtual home staging by BARNES Interiors to illustrate the property’s potential.
Interior design services are available upon additional budget.
For more information, please visit our website https://www.barnes-madrid.com/es, where you will find a curated selection of exclusive apartments in Chamberí, as well as other premium properties in Madrid.