Barnes Madrid presents this newly renovated apartment, ready to move in.
Located in a classic building with an elevator, in the quiet and well-connected Fuente del Berro neighborhood, one of the most residential and accessible areas of the Salamanca district. The project aims to reinterpret the space to maximize brightness, flow, and comfort, creating a contemporary and functional home.
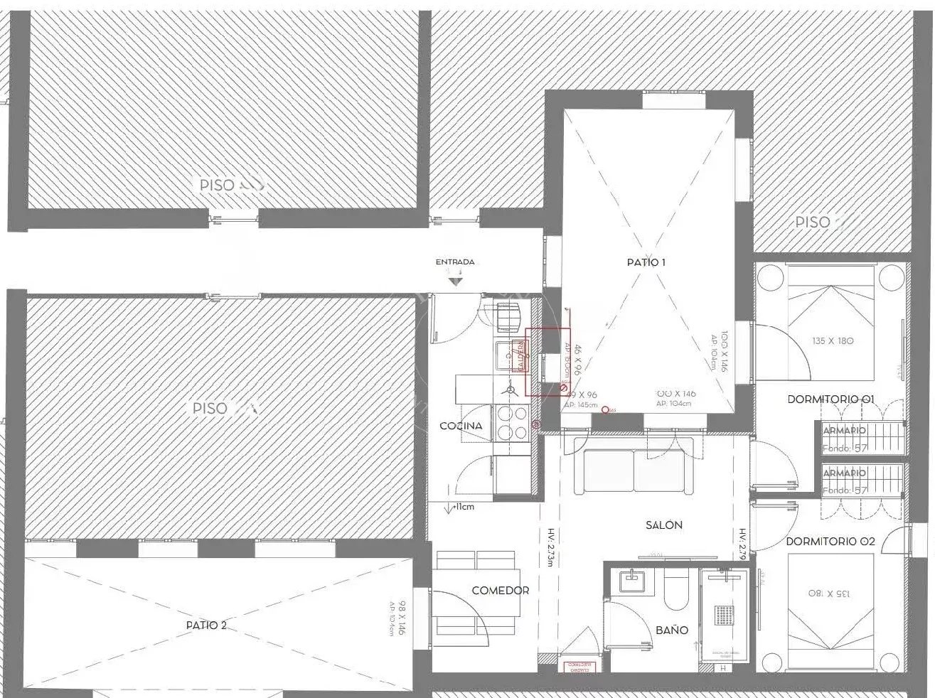
The property has a cadastral area of 51 m². It is situated on the fourth interior floor of a building dating back to 1928, with an elevator and adapted access. The design focuses on a modern and practical style, always maintaining an elegant aesthetic. The apartment features a spacious living-dining room, an equipped kitchen, two bedrooms, and a full bathroom, offering the perfect space for those seeking a well-designed home without compromising comfort.
This property is ideal for those wishing to live in a peaceful residential area, while still having all that Madrid has to offer, enjoying a home that combines elegance, functionality, and abundant natural light.
The property includes electric heating, air conditioning, and is delivered fully furnished, ready to move in. The community fees are low, with an annual IBI of €300 and a community fee of only €60/month.
A home designed for those looking for a unique, modern, and character-filled space in the heart of the Salamanca district.