In one of Madrid’s most sought-after and exclusive areas, Barnes presents this charming 75 m² property situated in a prestigious building that seamlessly blends classic character with contemporary comfort.
Located just a few minutes' walk from Paseo de la Castellana and Plaza de Colón, this home stands out for its privacy, natural light, and a layout meticulously designed to offer comfort and functionality in every space.
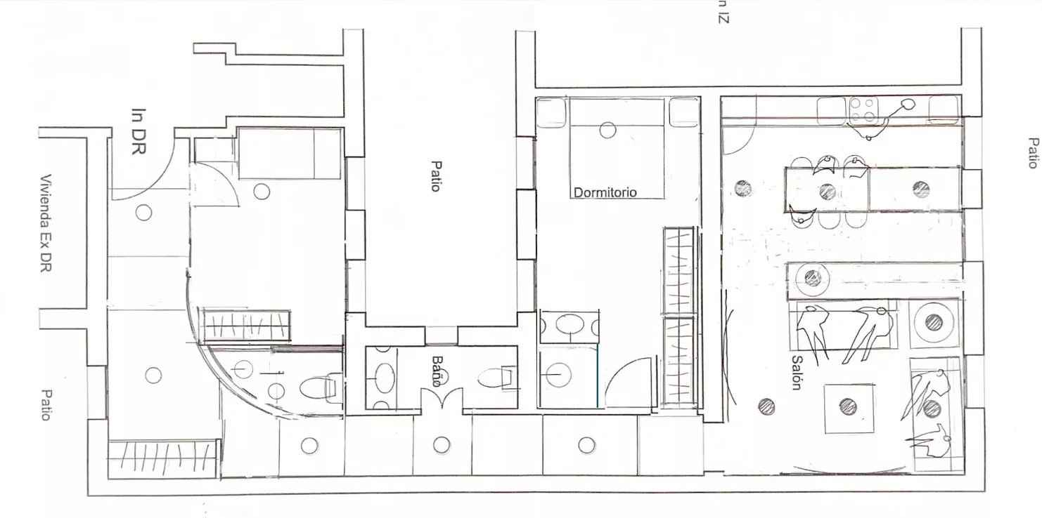
The layout opens with a bright secondary bedroom featuring a window and a modern en-suite bathroom with a shower tray. Along a naturally lit corridor, you'll find a guest toilet, a spacious built-in wardrobe, and the master bedroom equipped with an integrated bathroom, fitted wardrobes, and two large windows that provide warmth and a sense of space.
The living area includes a sophisticated lounge with three exterior windows and a decorative steam fireplace. The fully paneled kitchen, equipped with high-end appliances, integrates subtly into the living area, creating a welcoming and contemporary atmosphere. The ducted air-conditioning system ensures optimal temperature year-round.
Located in the prestigious Almagro neighborhood within Chamberí district, this property enjoys excellent connections to the city centre, surrounded by boutiques, restaurants, high-end services, and a vibrant cultural scene. It is an ideal option for both primary residence and high-end investment.
At Barnes, we invite you to explore this magnificent property—perfect for those who value elegance, comfort, and an unbeatable location in one of Madrid’s most iconic districts.