BARNES Madrid presents this exceptional 311 m² triplex penthouse for sale in the Chamberí district, in the heart of the distinguished Almagro neighborhood. Featuring a meticulously preserved neoclassical façade and a Parisian-inspired courtyard, this residence is where timeless grandeur meets contemporary luxury, creating a truly refined atmosphere.
Located on the upper levels of a distinguished four-story palace, this unique home offers an unparalleled living experience in the heart of Madrid—a perfect blend of historical charm and modern design. Renovated in 1989 with respect for the original layout, it preserves key heritage elements, combining history and functionality in a truly exclusive setting.
The property stands out for its majestic interior courtyard with classical arches, lush vegetation, and a central fountain, offering a peaceful and sophisticated ambiance from the very first moment.
With a privileged southern exposure, the penthouse enjoys abundant natural light throughout the day. Six exterior balconies and strategically placed Velux windows flood the interiors with light, enhancing the soaring ceilings and restored original architectural details.
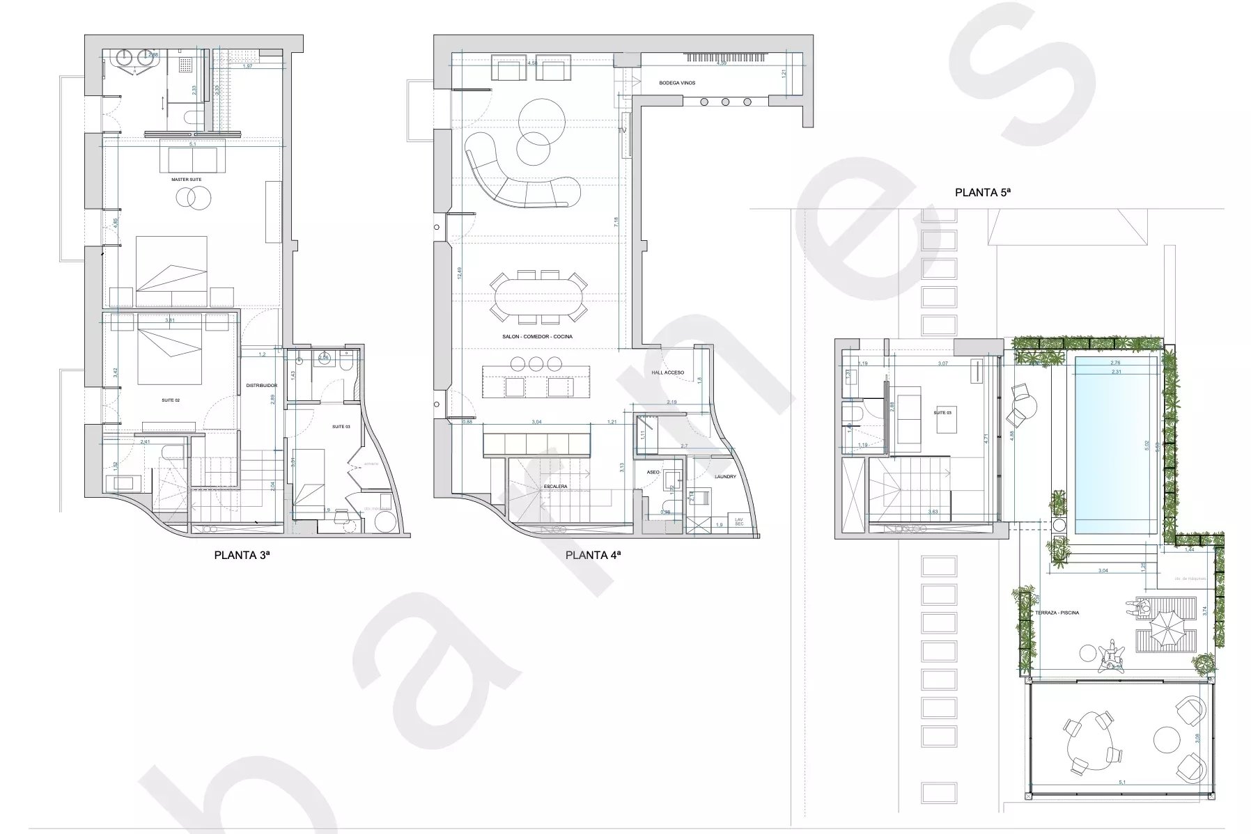
The main level is an open space that radiates both authenticity and sophistication. Solid oak flooring, original exposed beams, and classical moldings evoke the historical character of the palace, infusing the space with warmth and distinction. This floor includes a double living room, a spacious dining area, and an integrated designer kitchen. Amenities are seamlessly incorporated, such as a guest toilet, a fully equipped laundry area, and an elegant wine cellar—details that reflect the refined nature of this residence.
A private staircase leads to the lower level, designed as a serene sleeping area. It features two luxurious en-suite bedrooms, including a master suite with two walk-in closets and private balconies with privileged views of Madrid’s skyline.
The crown jewel of this home is the private 100 m² rooftop terrace, redefining the concept of urban living. It features a stylish private pool, a beautifully landscaped garden ideal for relaxation, and two additional en-suite studios with large sliding glass doors and open views—versatile spaces that can serve as an outdoor kitchen, a high-end office, or an artist’s studio.
This property’s true value lies not only in its double-height ceilings, six stately balconies, private garage, dedicated wine cellar, and expansive garden, but in the rare harmony of all these features within a single residence—something virtually impossible to replicate.
Some images have been virtually staged by BARNES Interiors to illustrate the property’s potential. Please note that the property is sold unfurnished. Interior design services for this property are available through BARNES Interiors at an additional cost.
For more information, please visit our website https://www.barnes-madrid.com/es, where you’ll find a curated selection of exclusive properties in Chamberí, as well as other premium residences in Madrid.