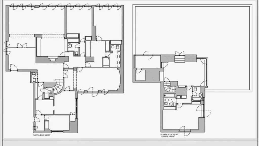
BARNES Madrid presenta este espectacular ático dúplex de 621 m² en el prestigioso Barrio de Salamanca, zona Castellana. Ubicado en una finca representativa con servicio de conserjería 24 horas, este inmueble ofrece una oportunidad única de crear una residencia de lujo personalizada, con amplitud excepcional, vistas panorámicas y una ubicación inmejorable en el corazón de Madrid.
Distribuido en dos plantas, la planta principal destaca por su gran versatilidad, permitiendo diseñar una distribución a medida según las necesidades y estilo de vida del futuro propietario. En la planta superior, una terraza espectacular ofrece vistas inigualables sobre Madrid, desde los rascacielos del norte hasta los monumentos históricos del centro, convirtiéndose en un espacio único para disfrutar del cielo madrileño en total privacidad.
La propiedad incluye dos plazas de garaje y trastero, aportando comodidad y valor añadido.
El Barrio de Castellana es sinónimo de sofisticación y exclusividad, rodeado de boutiques de alta costura, restaurantes gastronómicos, museos y zonas verdes emblemáticas. Una ubicación privilegiada que combina lujo, conectividad y calidad de vida.