BARNES Madrid vende este exclusivo proyecto de 8 lofts industriales de diseño, ubicados en el barrio de Valdeacederas, en el dinámico distrito de Tetuán, al norte de la capital.
Inspirados en el concepto original de loft neoyorquino, estos espacios evocan la esencia de los primeros lofts surgidos en el Soho y Tribeca durante la desindustrialización de los años setenta.
Aquellos espacios, con techos altos, grandes ventanales y plantas diáfanas, se convirtieron en el lugar de residencia y trabajo de artistas y creativos, dando paso a un estilo de vida moderno, funcional y vanguardista.
Estas 8 unidades han sido diseñadas respetando esa filosofía, e incorporan además terrazas interiores privadas, sistema de aerotermia, cámaras de videovigilancia, trastero, zona de carga y descarga, y materiales de alta calidad, que garantizan eficiencia, seguridad y confort.
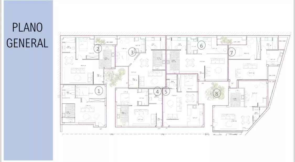
Puedes consultar precios, disponibilidad y planos en las imágenes o contactar con tu agente de BARNES para recibir información actualizada sobre disponibilidad y rentabilidad, ya que se trata de una oportunidad de inversión ideal, tanto para uso residencial como para explotación en alquiler.
Las imágenes presentadas han sido generadas con técnicas de home staging para mostrar el potencial del inmueble. Se informa que las viviendas se entregan sin amueblar.
Para más información, puede consultar nuestra página web https://www.barnes-madrid.com/es, donde encontrará una cuidada selección de propiedades exclusivas en Tetuán, así como otras viviendas premium en Madrid similares.