BARNES Madrid presenta un edificio de 1.165,7 m² construidos, un residencial de lujo ubicado en el prestigioso barrio de Justicia, en pleno Centro de Madrid. El proyecto nace de la rehabilitación integral de un edificio clásico de 1900, que conserva su encanto histórico mientras incorpora los estándares más altos de calidad, confort y diseño contemporáneo.
- Compuesto por siete viviendas de 2 y 3 habitaciones.
- Los precios oscilan entre 1 millón y 2,6 millones de euros.
- El precio medio por metro cuadrado se sitúa en torno a 14.000 €/m².
- Las viviendas se entregarán amuebladas y listas para entrar a vivir.
- Equipamientos y servicios previstos:
- Baño en suite y armarios empotrados.
- Salón-comedor integrado con cocina abierta totalmente equipada.
- Sistema de aerotermia con suelo radiante y refrescante.
- Domótica avanzada para controlar iluminación, climatización y otros aspectos del hogar.
- Zonas comunes exclusivas: piscina interior climatizada, sauna, gimnasio y espacio de coworking para residentes.
- Ascensor, servicio de conserjería y zonas comunes de diseño.
- Entrega prevista: finales de 2026.
El proyecto se distingue por su cuidada combinación entre arquitectura clásica y confort contemporáneo. La rehabilitación pone en valor los elementos originales del edificio —como la fachada y los detalles ornamentales—, integrándolos con interiores luminosos, distribuciones funcionales y materiales nobles.
Las zonas comunes han sido concebidas como un auténtico refugio urbano, donde el bienestar y la exclusividad son protagonistas. La piscina interior climatizada, la sauna y el gimnasio totalmente equipado invitan al relax y al cuidado personal, mientras que el espacio de coworking ofrece un entorno tranquilo y elegante para el trabajo o la creatividad.
Situado en el barrio de Justicia, una de las zonas más codiciadas de Madrid, el edificio disfruta de un entorno vibrante y sofisticado. A pocos pasos de Salesas, Chueca y Alonso Martínez, esta ubicación combina el encanto de la arquitectura clásica madrileña con una oferta incomparable de boutiques de diseño, galerías de arte, restaurantes de autor y cafés con personalidad. Con excelentes conexiones de transporte y una atmósfera cosmopolita, Justicia se consolida como el lugar ideal para quienes buscan vivir el lujo urbano con estilo y autenticidad.
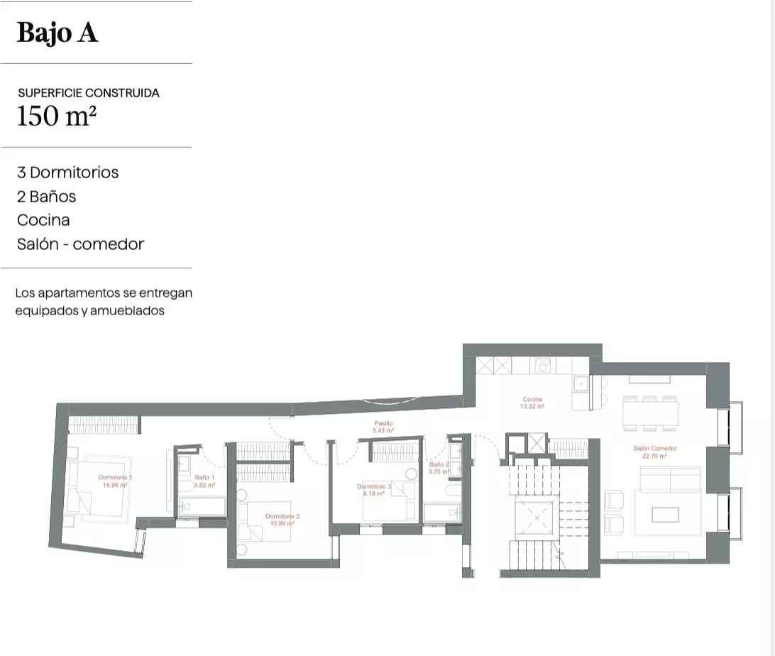
7 Apartamentos:
BAJO/A - 150m2 - 3 dorm. - 1.400.000,00 €
1º I/B - 141m2 - 2 dorm. - 2.050.000,00 €
1º D/A - 151m2 - 3 dorm. - 2.250.000,00 €
2º I/B - 141m2 - 2 dorm. - 2.175.000,00 €
2º D/A - 151m2 - 3 dorm. - 2.390.000,00 €
3º I/B - 141m2 - 2 dorm. - 2.450.000,00 €
3ºD/A - 151m2 - 3 dorm. - 2.690.000,00 €
Esos precios son sin IVA. El comprador tiene que añadir un 10% de IVA.