BARNES Madrid vende este exclusivo apartamento para reformar de 548 m² en el distrito de Chamberí, barrio Almagro.
Se encuentra en la séptima planta de un distinguido edificio de los años 50 con orientación sur y oeste, disfruta de abundante luz natural durante todo el día y ofrece una terraza con vistas impresionantes. Presenta una entrada majestuosa y se encuentra perfectamente conservado.
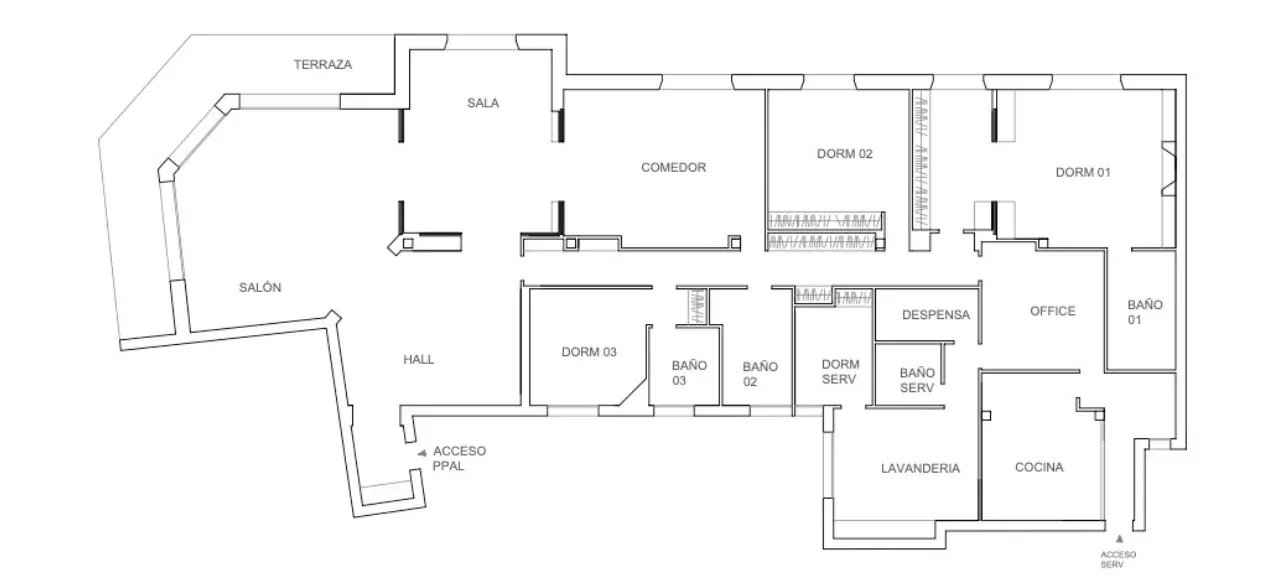
Destaca un amplio vestíbulo con detalles en mármol y chimenea, que da paso a tres salones luminosos conectados con la terraza mediante grandes ventanales, creando un ambiente perfecto para el entretenimiento.
El comedor independiente, accesible mediante puertas correderas, aporta funcionalidad y estilo. La cocina, espaciosa y bien organizada, incluye zona de office, despensa, dormitorio y baño de servicio, así como área de lavandería.
Dispone de cuatro dormitorios y cuatro baños, con la posibilidad de adaptar la distribución para incorporar un quinto dormitorio con su baño correspondiente. La vivienda se organiza en tres zonas bien diferenciadas: día, noche y servicio.
La zona de descanso alberga tres amplios dormitorios y tres baños completos, incluyendo una luminosa suite principal completamente exterior, que cuenta con un generoso vestidor y baño en suite, configurando un auténtico refugio de lujo. El cuarto dormitorio, ubicado en la zona de servicio, dispone también de su propio baño.
Entre los elementos arquitectónicos más destacados se encuentran los suelos de pino originales, las molduras decorativas y las elegantes ventanas con vidrieras emplomadas, que reflejan el carácter señorial del entorno.
La lujosa propiedad cuenta con calefacción y agua centrales, plaza de garaje con acceso directo, trastero y servicio de portería.
El barrio de Almagro ofrece un estilo de vida distinguido, rodeado de embajadas, residencias históricas y una oferta cultural y gastronómica de primer nivel.
Para más información, puede consultar nuestra página web https://www.barnes-madrid.com/es, donde encontrará una cuidada selección de pisos exclusivos en Chamberí, así como consultar otras viviendas premium en Madrid similares.