BARNES Madrid presenta esta singular vivienda de 128 m² situada en un edificio protegido, exento del pago de IBI y con gastos de comunidad reducidos. Una propiedad con una ubicación inmejorable, frente a la fuente de Ruiz Jiménez, entre los barrios de Almagro y Malasaña, una zona en plena transformación y con un alto potencial de revalorización. Una oportunidad excepcional de inversión en el corazón de Madrid.
Ubicada en una primera planta con altura de segunda, esta vivienda combina el encanto de un edificio clásico con una reforma integral de diseño contemporáneo, realizada con materiales de primer nivel y una cuidada atención al detalle.
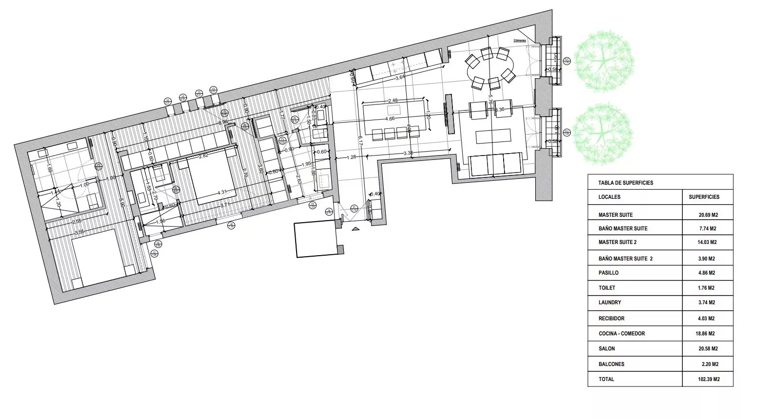
Desde su acceso, la amplitud y la luz natural son protagonistas. El salón-comedor, cálido y elegante, se abre a la calle a través de dos balcones, uno de ellos cerrado en cristal, creando un acogedor mirador con vistas al arbolado. La serenidad de este entorno urbano aporta una sensación de privacidad poco habitual en pleno centro de la capital.
La cocina abierta, con una isla central, combina funcionalidad y estilo. De la firma Línea 3, está equipada con electrodomésticos Bosch panelados de alta gama y múltiples espacios de almacenaje, pensada para quienes disfrutan del diseño sin renunciar a la practicidad.
Un aseo de cortesía y una zona de lavandería independiente completamente equipada completan la zona social.
La zona de noche dispone de dos dormitorios tipo suite, ambos con amplios ventanales, armarios empotrados a medida y baños completos en suite, dotados de duchas amplias, lavabos diseñados a medida, griferías de alta gama y revestimientos de Porcelanosa, que aportan un toque de elegancia y sofisticación.
La reforma ha respetado el carácter original del inmueble, realzándolo con acabados contemporáneos: suelos de gran formato de Porcelanosa en zonas comunes y madera natural en los dormitorios, radiadores de diseño, aire acondicionado por conductos regulable por estancia, y calefacción individual por gas natural.
Las puertas interiores, de nueva instalación y diseño contemporáneo de suelo a techo, aportan una estética moderna y coherente con el estilo general de la vivienda.
Las ventanas y puertas exteriores que dan a los balcones se han realizado en madera con acristalamiento Climalit, respetando la protección arquitectónica y la estética original de la fachada, mientras que el resto de las carpinterías son de aluminio con doble acristalamiento Climalit, lo que garantiza un óptimo aislamiento térmico y acústico sin renunciar a la elegancia y armonía del conjunto.
El mobiliario actual, de inspiración nórdica, realza la luminosidad y la armonía de cada estancia, aportando una atmósfera cálida, ordenada y serena.
Este edificio histórico, reconocido como inmueble de valor patrimonial, está exento del pago de IBI, y sus gastos de comunidad son especialmente bajos, lo que convierte esta propiedad en una opción muy atractiva tanto para vivir como para invertir.
Situada en la zona de San Bernardo, junto a la glorieta de Ruiz Jiménez, entre Almagro y Malasaña, esta vivienda goza de una localización privilegiada, a pocos pasos de las zonas más dinámicas y culturales de Madrid, con una excelente conexión de transporte —metro San Bernardo a escasos metros— y acceso inmediato a las principales arterias de la ciudad.
Una propiedad única que combina patrimonio, diseño y rentabilidad en una dirección con alma madrileña.
Le invitamos a visitarla, así como a descubrir en nuestra web de BARNES Madrid nuestra cuidada selección de viviendas únicas y exclusivas.