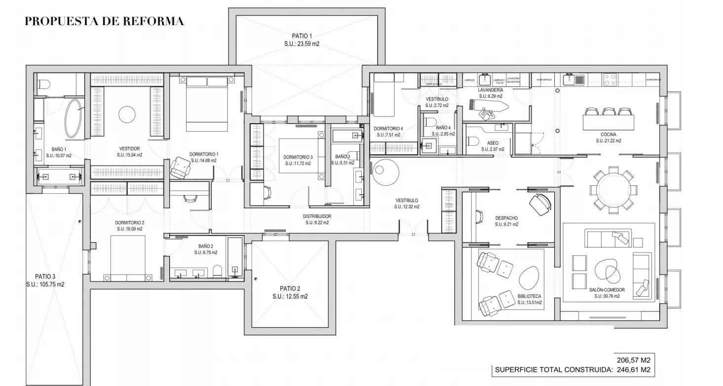
BARNES Madrid vende este elegante piso de 251 m² en plena reforma integral, ubicado en una finca señorial en el prestigioso barrio de Justicia, distrito Centro. Una oportunidad única para diseñar una residencia a medida en una de las zonas más exclusivas y demandadas de la capital.
Situado en una finca representativa, ofrece una distribución flexible que permite configurar hasta cuatro dormitorios con baños en suite, una generosa zona de día y una cocina de concepto abierto. La reforma —actualmente en fase avanzada— ha sido concebida con criterios de funcionalidad, diseño contemporáneo y acabados de alta gama.
Gracias a sus techos altos, grandes ventanales, estancias exteriores y varios balcones a la calle, la luz natural y la ventilación cruzada están garantizadas durante todo el día, aportando una sensación de amplitud y confort en cada espacio.
Ubicada a escasos metros de la Plaza de las Salesas, esta vivienda se encuentra en el epicentro del lujo madrileño, rodeada de boutiques de autor, galerías de arte, restaurantes de alta cocina y servicios exclusivos. Su privilegiada localización la convierte tanto en una excelente residencia habitual como en una inversión de alto valor patrimonial.
Para más información, puede consultar nuestra página web https://www.barnes-madrid.com/es, donde encontrará una cuidada selección de pisos exclusivos en Justicia, así como consultar otras viviendas premium en Madrid similares.