Barnes Madrid a le plaisir de présenter cette belle villa, dont la construction moderne est détaillée ci-dessous et qui est située à seulement 20 minutes de Madrid.
Il s'agit d'une belle œuvre architecturale en différents volumes, construite sur un terrain rectangulaire de 1 325 mètres, a 400 mètres construits et dans le même terrain, nous trouvons, des pins, des chênes, des roches moussues et de la végétation indigène. Les vues à 360° depuis les grandes fenêtres de toute la maison sont merveilleuses.
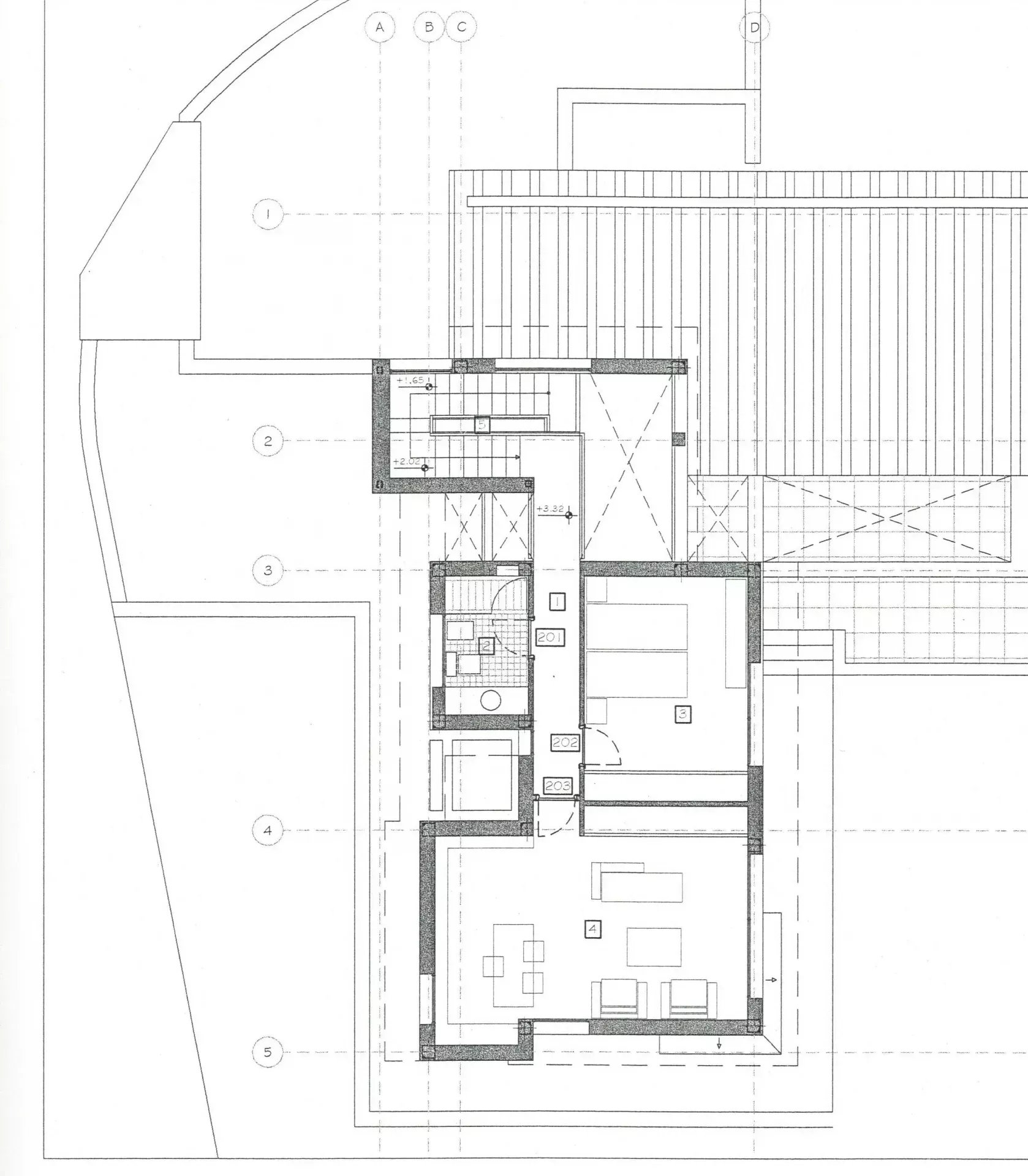
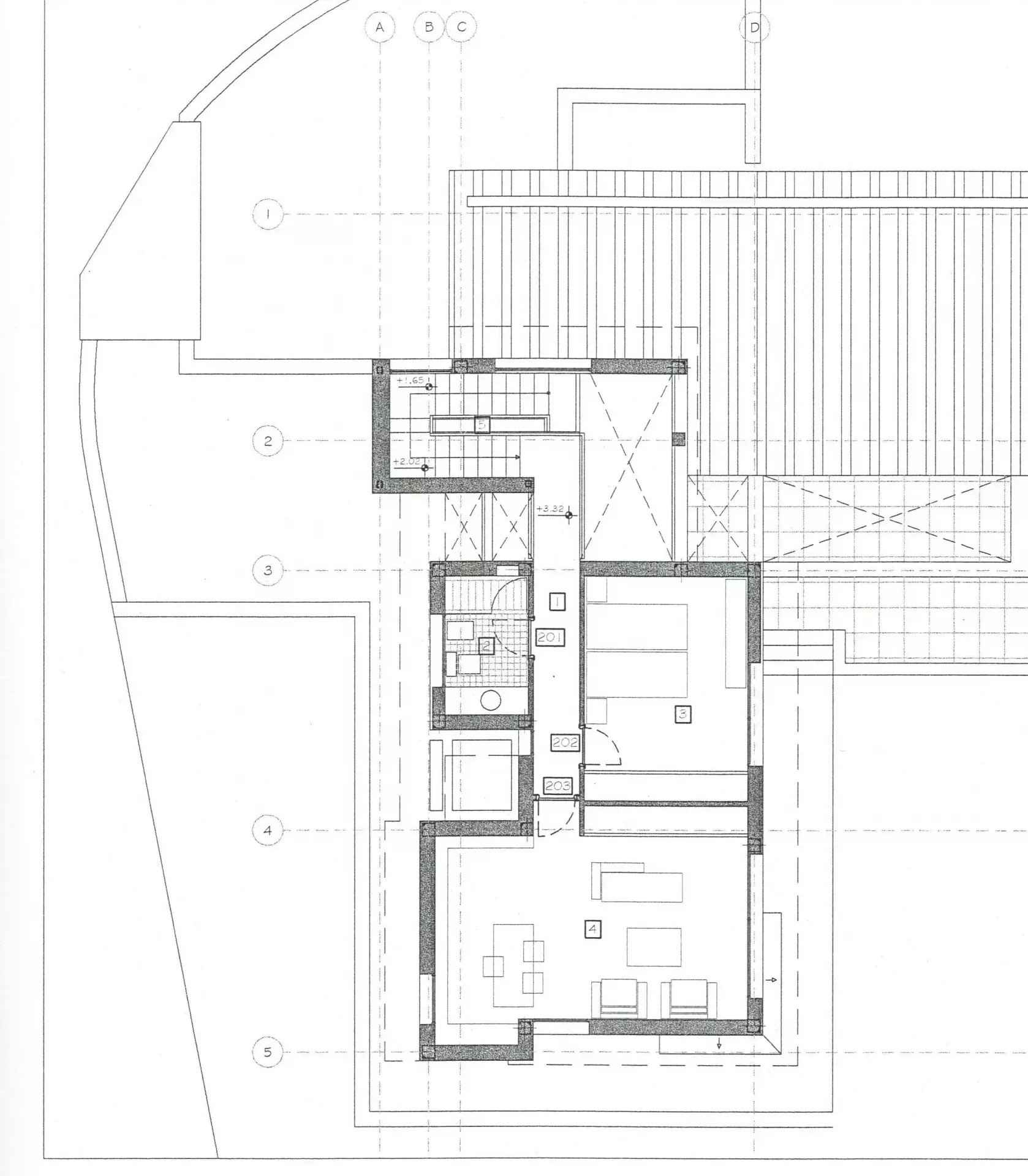
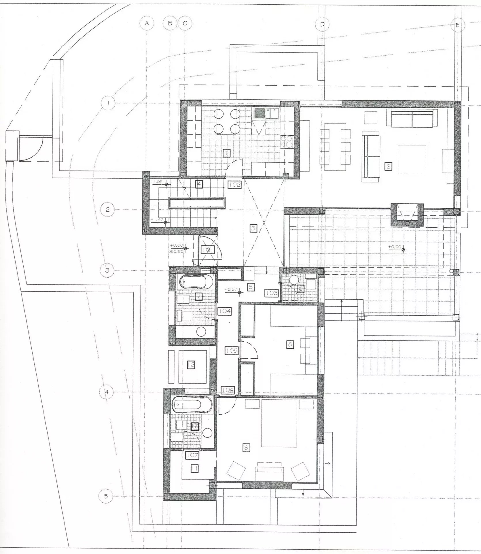
La maison se compose de 3 étages, au niveau principal, il y a : le hall d'entrée à double hauteur, l'escalier moderne, la cuisine, moderne, design minimaliste, tout en acier inoxydable, équipée d'appareils haut de gamme et avec de belles vues, le salon avec de hauts plafonds, qui pourrait être agrandi, en déplaçant seulement les écrans qui le séparent de la terrasse, la terrasse avec accès au jardin, qui est adapté pour une piscine, 2 chambres doubles, une salle de bains, 1 toilette d'invité et la terrasse avec porche. Le tout, développé au niveau intermédiaire de la propriété, évitant ainsi que les volumes résultants ne s'élèvent ou ne s'enfoncent trop.
A l'étage, on trouve une belle bibliothèque en bois et un bureau ou un espace de travail. Il y a une grande chambre principale avec dressing et une salle de bain très confortable et lumineuse.
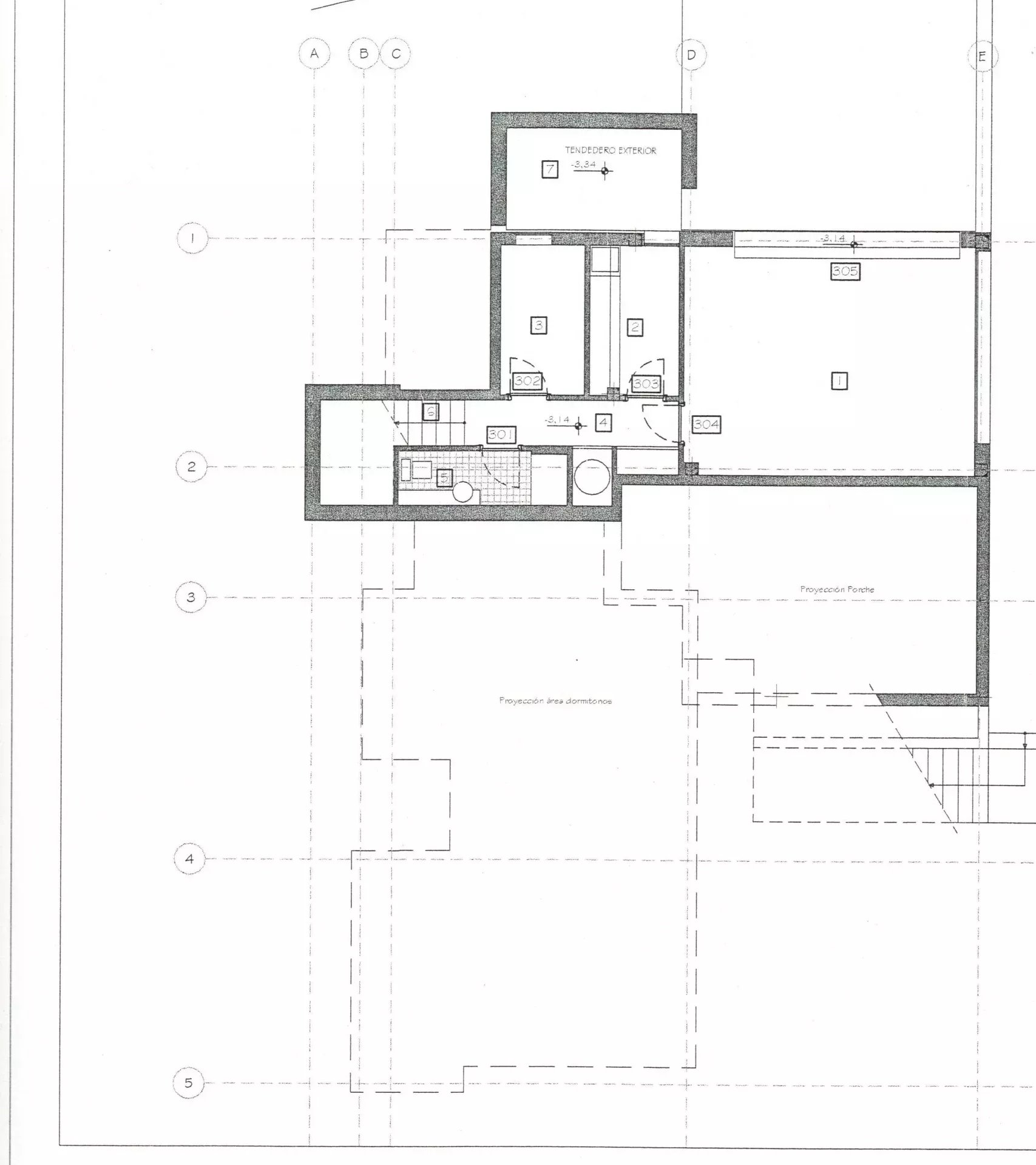
Au rez-de-chaussée, il y a une chambre d'amis, une salle de bains, la buanderie avec un patio extérieur, le garage et une autre zone préparée pour le home cinéma avec une pré-installation audio pour la connexion d'écrans acoustiques. Cette zone est parfaitement adaptable pour en faire un appartement indépendant.
Il dispose d'un parking couvert pour 2 voitures et d'un parking extérieur pour 2 autres voitures, avec un accès coïncidant presque avec le niveau de la route publique.
Les qualités de la construction et des finitions sont détaillées ci-dessous :
Structure : béton armé, poutrelles précontraintes et dalles de plancher en voûte avec couche de compression en béton.
Maçonnerie : façades revêtues de pierre calcaire naturelle, isolation projetée de 40 mm d'épaisseur et cloisonnement.
Cloisons intérieures en double brique creuse, garnies et enduites de plâtre et de résine.
Toitures inclinées avec débords de toit, isolation et bois d'iroko.
Menuiserie extérieure - Fenêtres en aluminium laqué à rupture de pont thermique, double vitrage type climalit 6-12-6. Porte d'entrée en bois massif renforcé.
Menuiserie intérieure : Menuiserie en bois d'iroko, laquée en blanc dans certaines zones et en couleur naturelle dans d'autres. Armoires encastrées et doublées de bottes, avec les mêmes caractéristiques que les portes intérieures.
Clôture périmétrique de la parcelle revêtue de pierre naturelle avec portes coulissantes motorisées pour l'accès des véhicules et porte équipée d'interphone pour les piétons.
Finitions intérieures : Sol en ciment poli dans le hall d'entrée, le salon et le distributeur du rez-de-chaussée.
Faux plafond en plâtre dans les distributeurs, la cuisine, la buanderie, le dressing et les salles de bains.
Installations spéciales : Eau chaude sanitaire par chaudière individuelle mixte, cheminée dans le salon, chauffage de l'eau par émetteurs en aluminium et chaudière.
Réservoir de gaz de 300 litres.
Chaudière pour chauffage au sol à eau.
Panneaux solaires : tubes sous vide avec glycol.
D'autres détails sont disponibles sur demande de nos clients de Barnes.
Il s'agit sans aucun doute de la meilleure construction de la région, réalisée avec amour pour ses propriétaires.
Barnes vous invite à visiter son site Internet, où vous trouverez cette maison et d'autres belles propriétés : www.barnes-international.com.