BARNES Madrid présente cet appartement de 83 m² entièrement rénové et neuf, situé dans l’un des emplacements les plus recherchés du quartier de Salamanca, à quelques pas de la Plaza del Marqués de Salamanca. Une propriété qui allie design intérieur contemporain, confort et une adresse véritablement privilégiée.
Situé au quatrième étage d’un immeuble de standing avec concierge et ascenseur, ce bien offre la tranquillité d’une orientation vers une grande cour intérieure soignée, garantissant luminosité et sérénité au cœur du quartier.
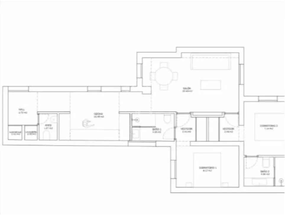
Le logement, entièrement meublé et prêt à emménager, a fait l’objet d’une rénovation soignée avec des matériaux et des finitions de haute qualité. Il dispose de deux grandes chambres en suite, conçues pour offrir un maximum de confort et d’indépendance. La suite principale comprend un élégant dressing, apportant fonctionnalité et sophistication. De plus, il comprend des toilettes invités, idéales pour les visiteurs.
Dans l’espace de vie, le salon se distingue par son architecture intérieure raffinée, intégrant des portes invisibles menant aux deux chambres qui, une fois fermées, se fondent dans un élégant mur mouluré, créant une continuité visuelle et une atmosphère unique et sophistiquée. À l’entrée, le hall dispose d’un placard vestiaire pratique et offre un accès direct aux toilettes invités. La cuisine, conçue comme un espace indépendant, est particulièrement agréable et fonctionnelle, équipée de tous les appareils électroménagers entièrement intégrés qui s’harmonisent avec le design global.
Les placards intégrés optimisent l’espace de rangement, tandis que le système domotique permet de contrôler la climatisation et d’autres éléments du logement, apportant efficacité et modernité. Avec une classe énergétique B, une climatisation réversible chaud/froid et un soutien au gaz naturel, le bien garantit un confort tout au long de l’année.
Une opportunité exceptionnelle pour vivre ou investir dans l’un des meilleurs quartiers de Madrid, entouré de commerces exclusifs, de restaurants et de tous les services.
Nous vous invitons à le visiter, ainsi qu’à consulter notre site web BARNES, où vous pourrez découvrir notre sélection de biens uniques et exclusifs.