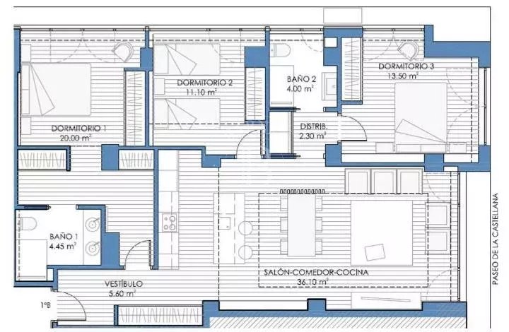
Nous vous présentons cette magnifique propriété entièrement rénovée avec des matériaux de qualité, prête à être emménagée et à être appréciée. En entrant dans la maison, nous trouvons sur la gauche la suite principale, spacieuse et confortable, équipée de sa propre salle de bain complète avec douche et placards de grande capacité.
Le couloir mène à l'élégant salon ouvert intégré à la cuisine. Cet espace devient le véritable protagoniste de la maison grâce à une spectaculaire baie vitrée du sol au plafond, qui inonde la pièce de lumière naturelle et offre une vue très agréable, même s'il s'agit d'un premier étage, apportant une sensation d'espace et de chaleur.
À gauche de la zone sociale se trouvent deux chambres supplémentaires, toutes deux extérieures et en suite. Chacune dispose de baies vitrées, de volets électriques et d'une vue dégagée, ce qui est rare à cet étage, garantissant un apport constant de lumière, de l'intimité et un caractère très attrayant.
La maison dispose également de toilettes pour les invités, conçues pour préserver l'intimité des espaces privés.
Dans l'ensemble, il s'agit d'une propriété moderne, très lumineuse, récemment rénovée et dotée d'une distribution impeccable, parfaite pour ceux qui recherchent le design, le confort et une excellente qualité de vie dès le premier jour.