Barnes Madrid présente cet appartement exclusif de 185 m² de surface construite, situé au cinquième étage, actuellement en cours de rénovation complète dont l'achèvement est prévu pour mai, conçu dans un style contemporain avec des matériaux de grande qualité. Très lumineux et doté d'un agencement soigné, le logement sera livré meublé et décoré par un architecte d'intérieur, offrant ainsi un cadre sophistiqué et prêt à emménager.
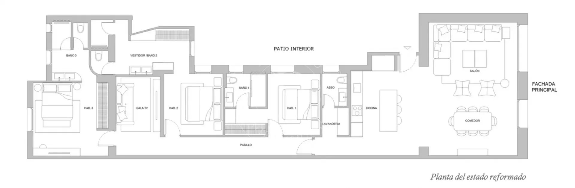
L'espace de vie se distingue par une vaste pièce ouverte qui intègre le salon, la salle à manger et une élégante cuisine ouverte équipée d'appareils électroménagers haut de gamme, créant un environnement moderne, fonctionnel et accueillant, idéal tant pour la vie quotidienne que pour recevoir des invités. L'espace nuit comprend trois chambres avec salle de bains attenante, conçues pour garantir un maximum de confort et d'intimité. De plus, la propriété disposera d'une agréable salle de télévision indépendante, de toilettes de courtoisie et d'un espace buanderie, apportant praticité et confort au quotidien. L'immeuble, de style classique et prestigieux, est équipé d'un ascenseur et présente d'excellentes qualités de construction.
Située dans le quartier de Lista, au sein du prestigieux arrondissement de Salamanca, la zone allie à la perfection tranquillité résidentielle et dynamisme urbain. Le quartier se distingue par son offre gastronomique variée, ses boutiques exclusives et ses services de premier ordre, ainsi que par d'excellentes liaisons de transports en commun, avec plusieurs lignes de métro à quelques minutes. Un emplacement idéal pour ceux qui souhaitent vivre dans l'un des quartiers les plus prisés de Madrid, avec toutes les commodités à portée de main.