Barnes Madrid présente un penthouse exclusif situé dans un immeuble classé du quartier de Salamanca, l'un des quartiers les plus prestigieux et les plus prisés de la capitale. Cette propriété, située au septième étage, se distingue par sa luminosité et sa tranquillité, car elle est intérieure mais offre une vue dégagée.
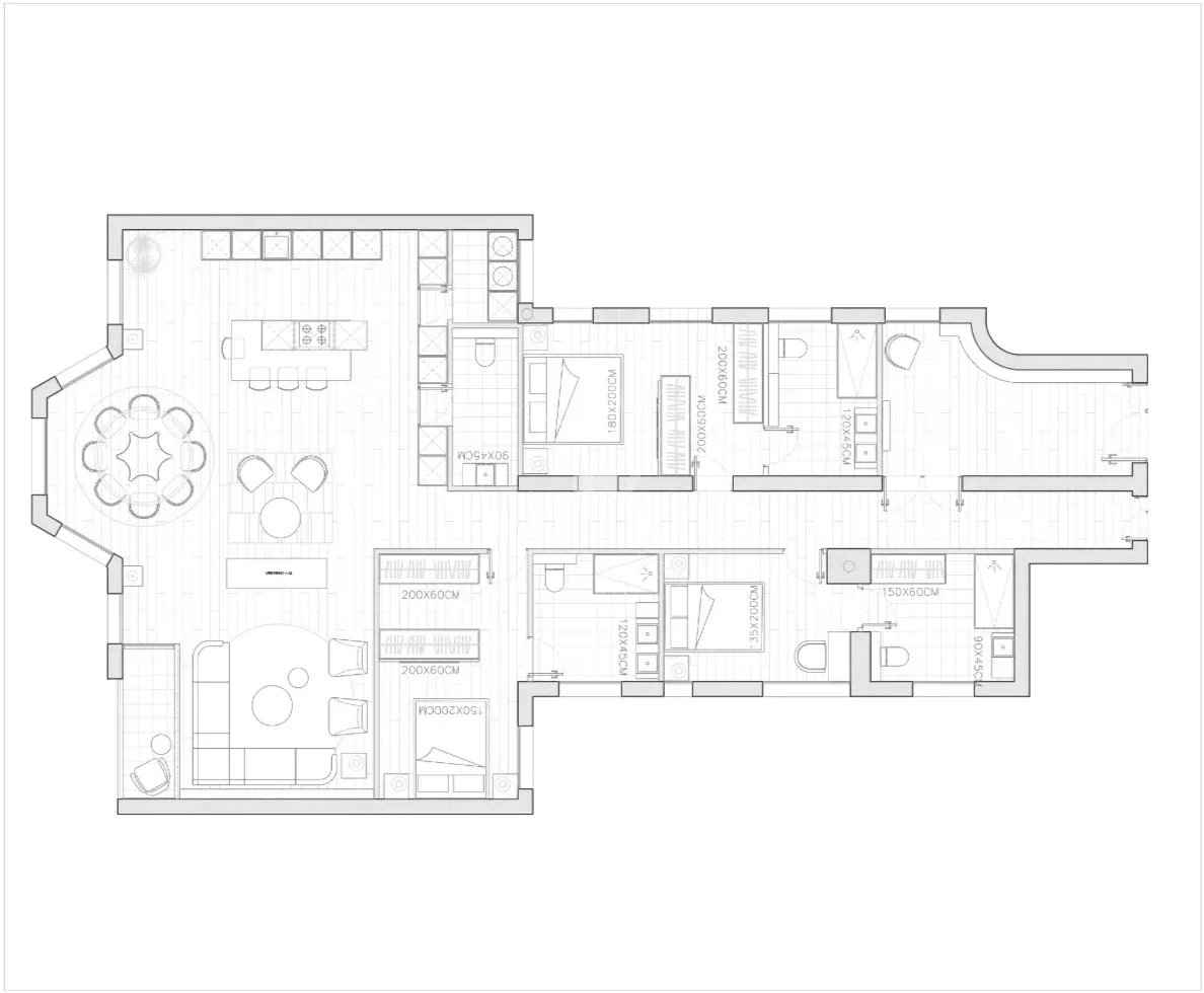
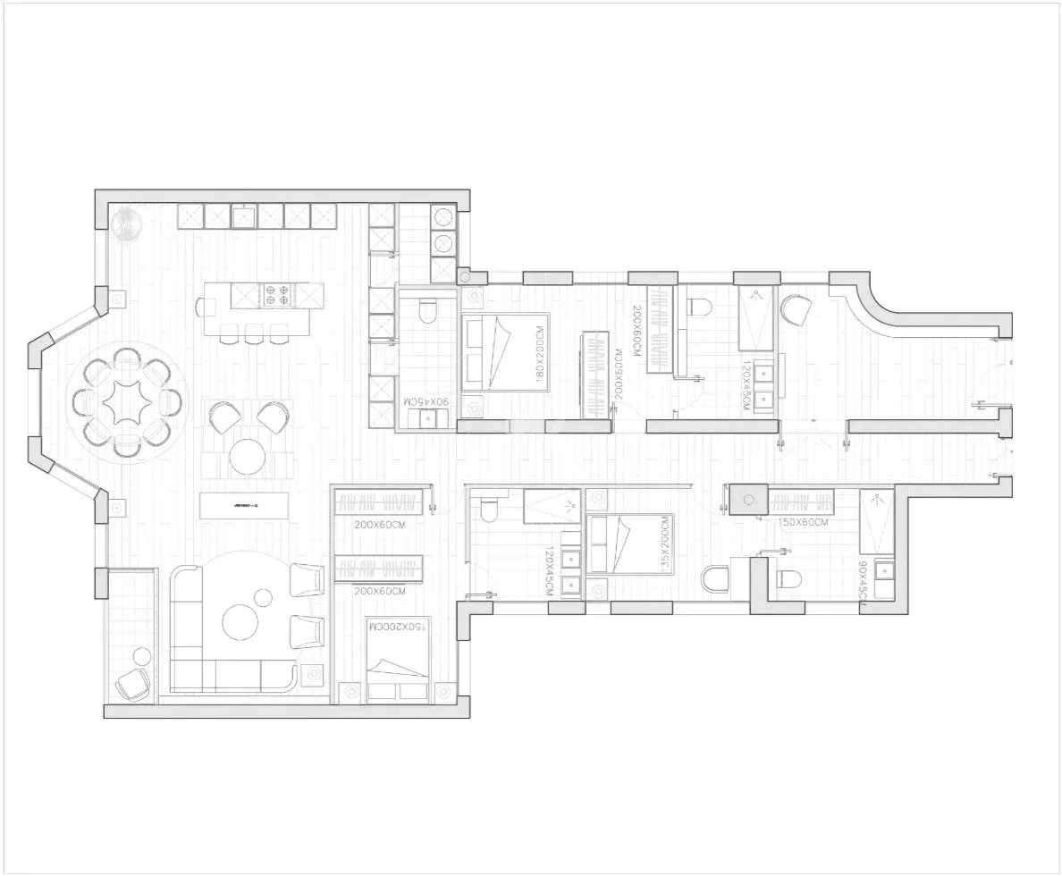
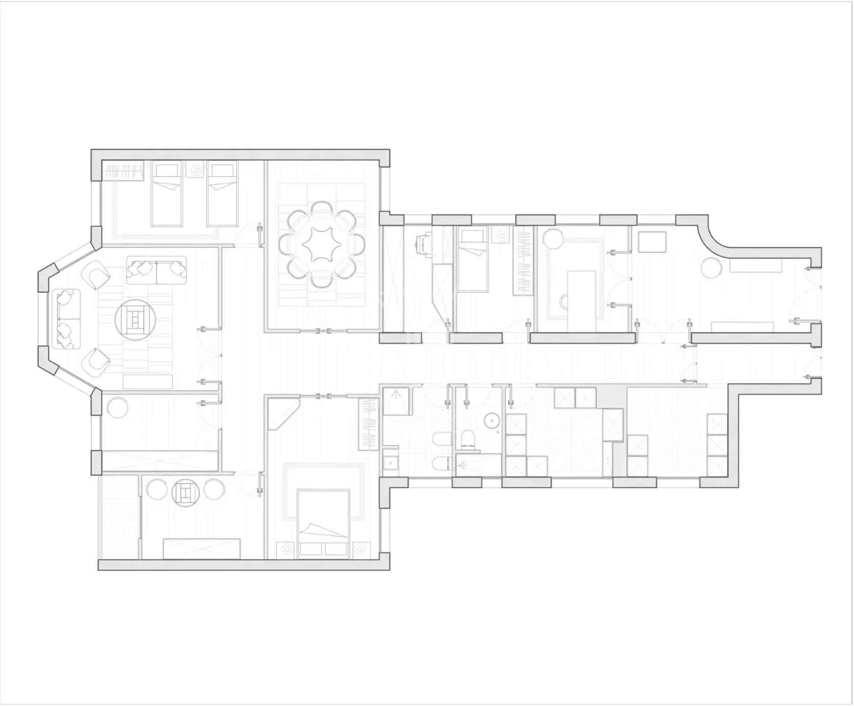
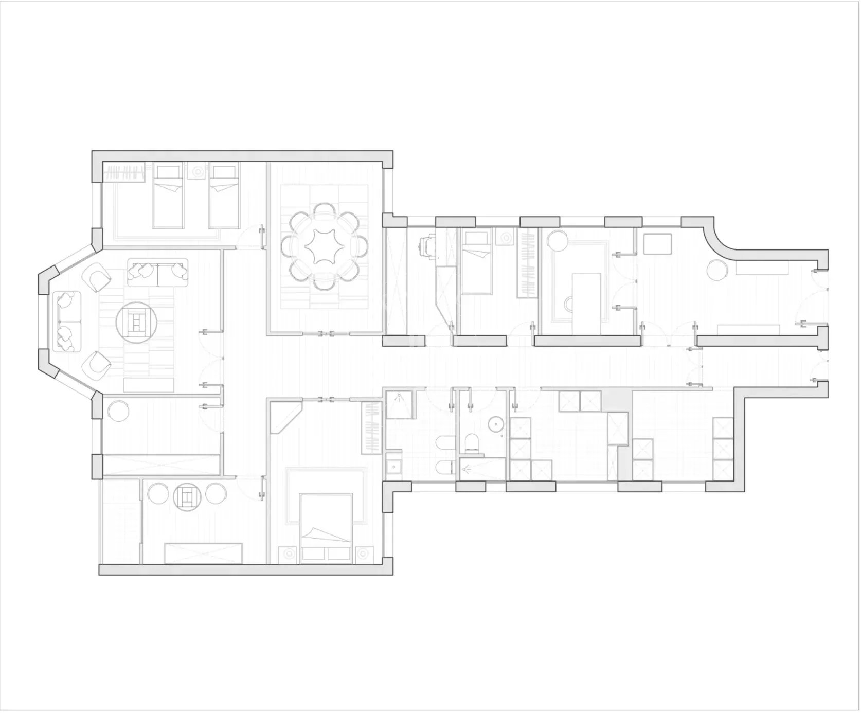
Avec une surface construite d'environ 200 m², elle offre une magnifique opportunité de réaliser une rénovation complète et de l'adapter à votre goût. Elle dispose actuellement d'un grand salon, d'une salle à manger indépendante, de cinq chambres, de deux salles de bains et d'une cuisine séparée, avec de multiples possibilités de redistribution pour créer des espaces modernes et fonctionnels.
Le bâtiment, représentatif de l'architecture classique madrilène du début du XXe siècle, a une grande valeur historique et est en parfait état de conservation.
Une maison à fort potentiel pour ceux qui cherchent à créer leur foyer au cœur du quartier le plus élégant de Madrid, alliant le charme d'une propriété seigneuriale à la possibilité de concevoir un espace contemporain et personnalisé.
Le logement dispose d'un débarras enregistré séparément, disponible à l'achat pour 45 000 €