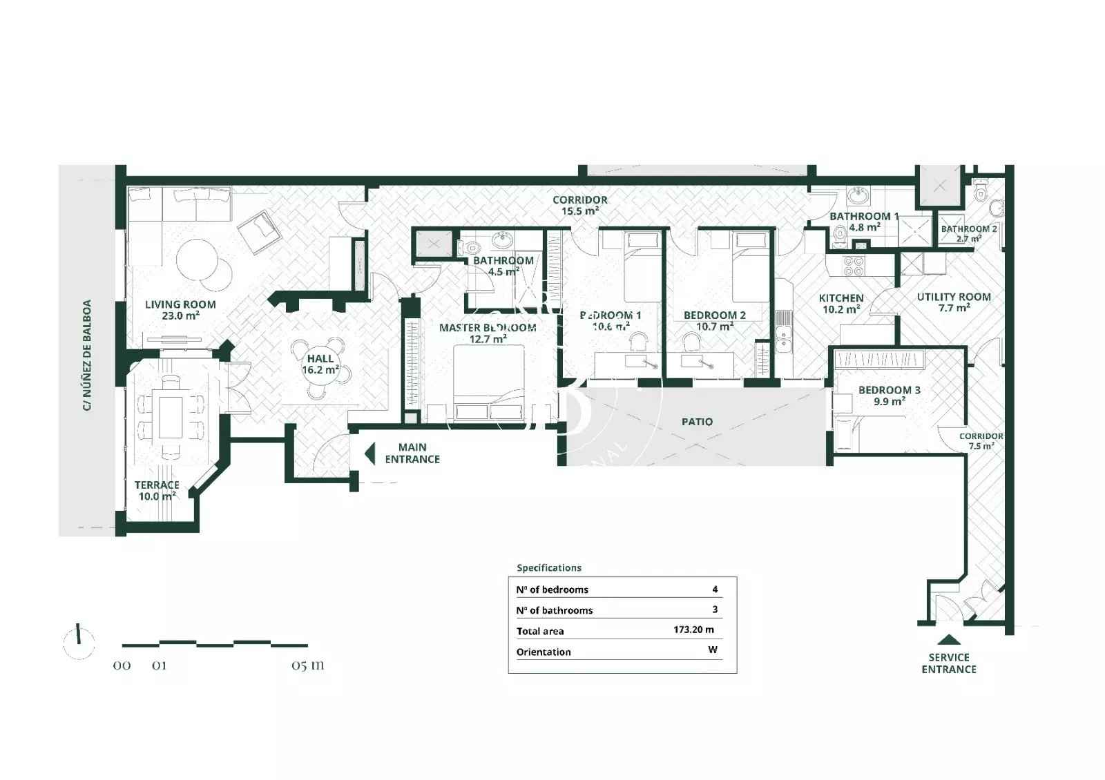
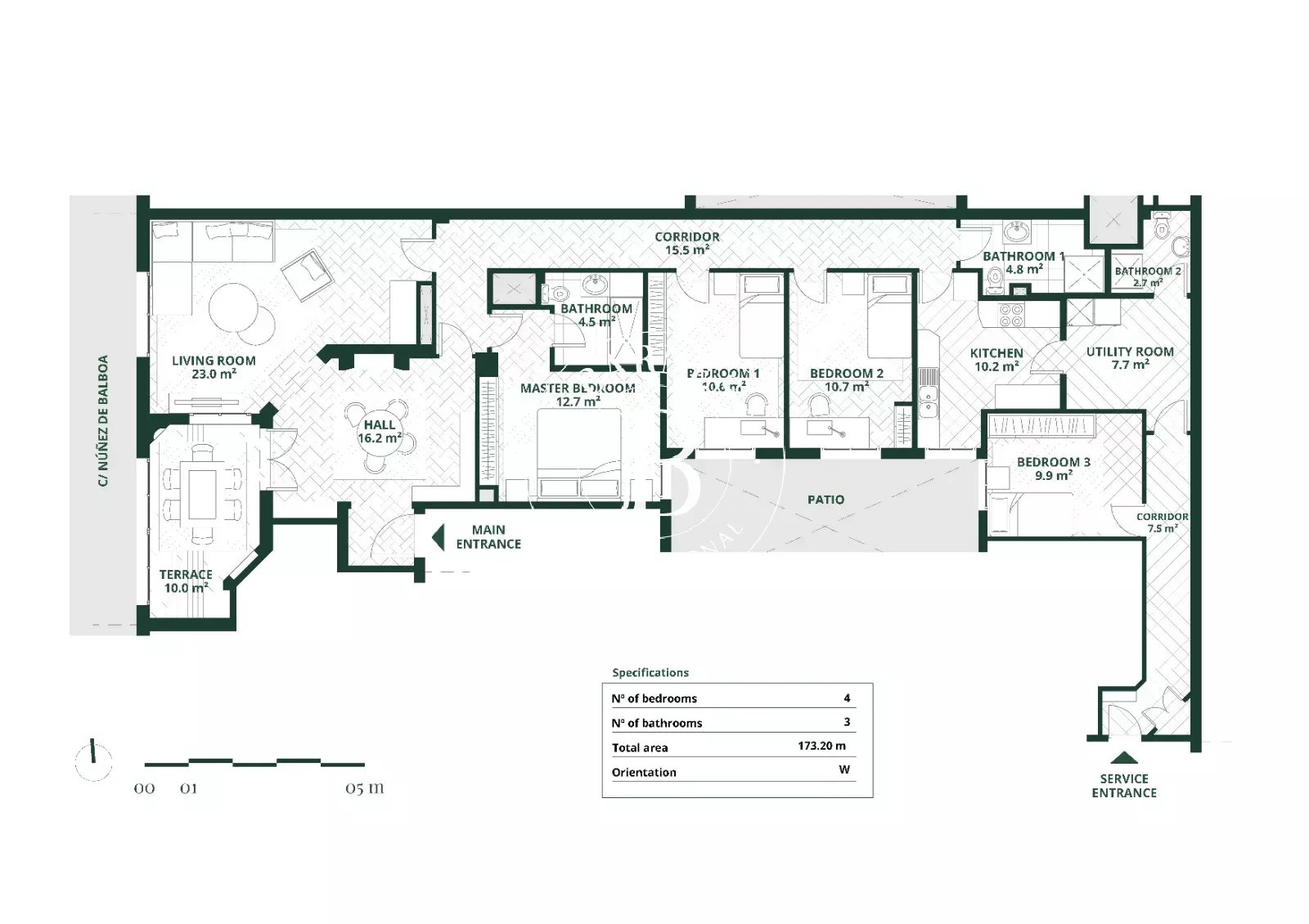
Vaste appartement de 220 m² situé au quatrième étage d'un immeuble classique de Madrid, proposé à la rénovation, offrant une opportunité unique à ceux qui souhaitent concevoir leur intérieur depuis zéro dans l'un des emplacements les plus privilégiés de la capitale. Le bien dispose de quatre chambres doubles, toutes avec placards encastrés et parquet en chevrons, ainsi que de trois salles de bains complètes.
La distribution généreuse et fonctionnelle s'articule autour d'un grand hall central donnant accès au salon-salle à manger avec sa propre terrasse sur la Calle Núñez de Balboa, ainsi qu'à la chambre principale avec salle de bains privative. Une longue galerie relie les autres pièces : trois chambres supplémentaires, une grande cuisine et une zone de service indépendante avec entrée privée, office et buanderie. L'orientation ouest garantit une lumière naturelle tout l'après-midi. L'état actuel du bien permet d'entreprendre une rénovation complète sans contraintes, en adaptant chaque espace aux besoins et aux goûts du nouveau propriétaire.
L'immeuble, construit en 1946, est une œuvre représentative de l'architecture résidentielle madrilène d'après-guerre : façade classique, hauts plafonds, moulures d'origine et parquet en chevrons dans les pièces nobles. Il dispose d'un ascenseur et d'un service de conciergerie, ce qui apporte confort et sécurité aux résidents.
L'appartement est situé en plein quartier de Salamanca, précisément dans la zone de Recoletos, l'un des endroits les plus prisés de Madrid. Ses rues ordonnées, avec des commerces de luxe, des restaurants de premier ordre, des écoles de référence et d'excellentes connexions de transport en commun — le métro Lista et Núñez de Balboa à quelques pas —, en font une option idéale tant pour les familles que pour les investisseurs à la recherche d'un actif de premier ordre dans la capitale.