Dans l'une des adresses les plus prisées du quartier de Recoletos, en plein cœur de la rue Ayala et à quelques mètres de l'emblématique rue Serrano, se trouve cette magnifique propriété extérieure de 280 m² construits, située au premier étage d'un immeuble moderne et représentatif, avec concierge, double ascenseur (principal et de service), un accès indépendant pour le personnel et une place de parking dans la même propriété incluse dans le prix. Une opportunité unique pour ceux qui recherchent un logement spacieux, lumineux et avec un projet de rénovation sur mesure dans l'un des quartiers les plus exclusifs de Madrid.
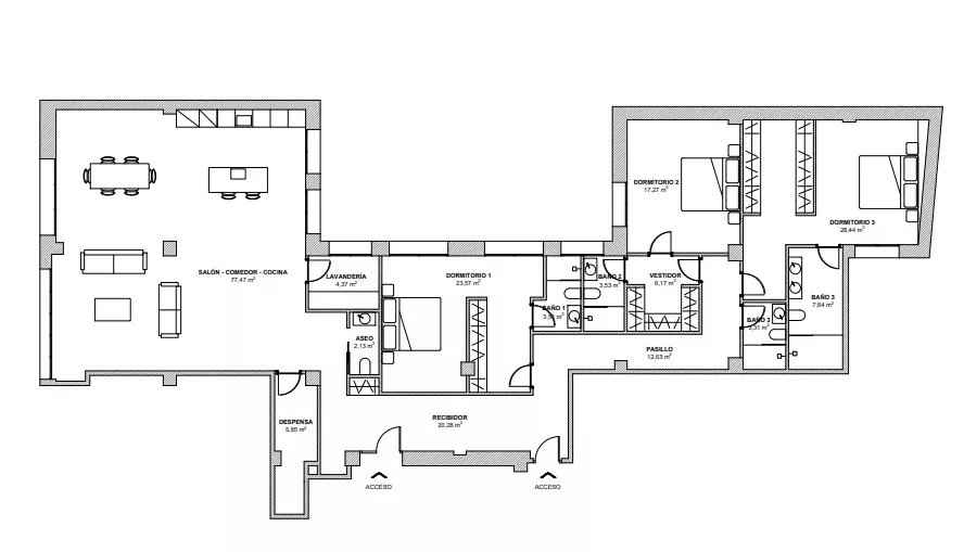
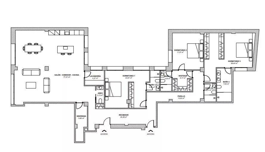
La superficie totale de l'appartement, enregistrée dans l'acte notarié, est de 280 m², dont 242 m² correspondent à la superficie utile de l'appartement et 38 m² aux parties communes. La distribution actuelle comprend un grand salon-salle à manger extérieur orienté au sud, avec une magnifique lumière naturelle tout au long de la journée, trois chambres, trois salles de bains et une cuisine indépendante avec accès de service. Grâce à son plan rectangulaire et à l'absence quasi totale de murs porteurs, cette propriété offre un énorme potentiel de redistribution pour s'adapter à un style de vie contemporain, avec des zones jour et nuit parfaitement différenciées et de grands espaces ouverts.
La propriété, de construction moderne, dispose de toutes les commodités exigées par une clientèle haut de gamme : garage dans le bâtiment même avec ascenseur direct, possibilité d'acquérir une deuxième place, concierge physique assurant le service toute la semaine, et un hall d'entrée spacieux, élégant et adapté. L'orientation sud de la maison, combinée à sa position extérieure, garantit non seulement une grande luminosité, mais aussi une atmosphère chaleureuse et sereine, idéale pour en faire une maison de référence dans la région.
Le bien est vendu dans son état actuel, offrant à l'acheteur la possibilité de concevoir une rénovation complète entièrement personnalisée. Le prix sans rénovation est de 3 475 000 € (soit 12 400 €/m²), tandis que la valeur estimée une fois rénové s'élève à 3 975 000 € (14 190 €/m²), ce qui en fait un investissement solide dans l'un des quartiers les plus prometteurs et les plus demandés du marché résidentiel de luxe madrilène.