BARNES Madrid présente, au cœur du prestigieux quartier de Salamanca, cette propriété exclusive située dans un immeuble emblématique avec service de conciergerie.
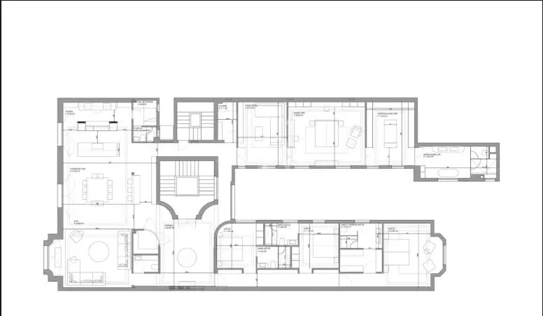
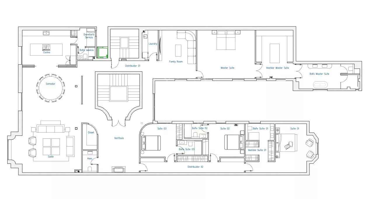
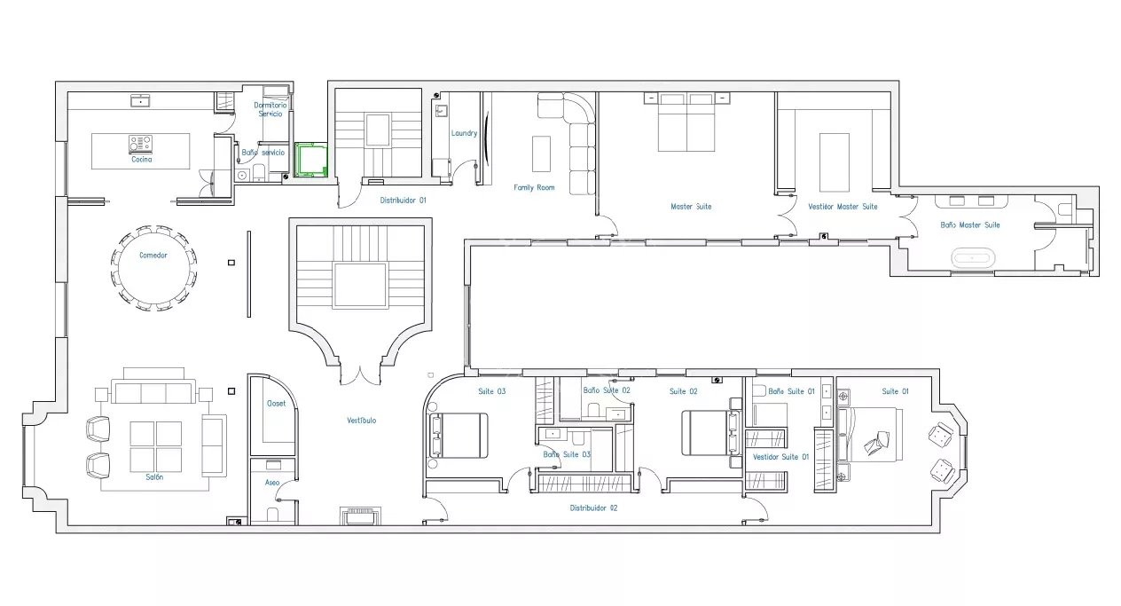
D'une superficie de 487 m², cette maison représente une opportunité unique pour ceux qui cherchent à créer une résidence de luxe sur mesure dans l'un des quartiers les plus prisés de Madrid.
Ses espaces spacieux et lumineux offrent des possibilités infinies de réaménagement.
Actuellement, la rénovation prévue comprend quatre chambres en suite, chacune avec salle de bain privée et dressing, ainsi qu'un WC supplémentaire. Les salons principaux, aux dimensions extraordinaires, bénéficient d'une orientation extérieure et de grandes baies vitrées qui inondent les pièces de lumière naturelle, mettant en valeur les hauts plafonds, l'élégance classique et le caractère représentatif propre aux immeubles majestueux du quartier.
La propriété dispose d'une place de parking dans le même bâtiment, un privilège rare dans ce quartier, et est en cours de rénovation.
Une résidence exceptionnelle pour ceux qui cherchent à allier le charme de l'architecture classique aux possibilités d'une rénovation complète dans le quartier le plus sophistiqué de Madrid, entouré de boutiques exclusives, de restaurants renommés et des meilleurs services de la capitale.
BARNS vous invite à visiter son site web pour découvrir les propriétés les plus exclusives de la capitale.