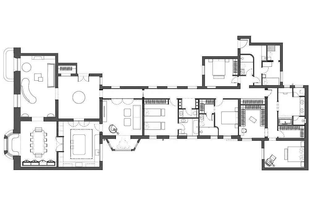
BARNES Madrid vend ce magnifique appartement rénové de 510 m² dans le quartier de Salamanca, secteur Castellana.
Situé au deuxième étage, avec de grandes fenêtres et des balcons donnant sur la rue, ce bien d’exception séduit par sa luminosité, son agencement soigné et son design élégant, fusionnant le charme architectural d’époque avec le luxe contemporain et des finitions d’exception.
L’immeuble dispose d’un service de conciergerie, garantissant un environnement sécurisé, privé et confortable pour ses résidents.
Les hauts plafonds, les sols en bois naturel et les moulures restaurées conservent le caractère noble de l’époque, tandis que les intérieurs ont été entièrement modernisés avec des matériaux innovants et des finitions haut de gamme.
Le grand salon, les espaces sociaux connectés et la cuisine design créent une ambiance sophistiquée, idéale pour la vie quotidienne comme pour recevoir. La lumière naturelle inonde chaque pièce, renforçant la sensation d’espace et de bien-être.
L’appartement dispose de quatre chambres principales, toutes conçues pour offrir un maximum de confort et de raffinement, ainsi qu’une cinquième chambre de service, parfaite pour le personnel de maison ou comme espace polyvalent selon les besoins du futur propriétaire.
Le quartier de Castellana est l’un des plus exclusifs de Madrid, entouré de boutiques de luxe, galeries d’art, restaurants gastronomiques et enseignes internationales.
Pour plus d’informations, veuillez consulter notre site https://www.barnes-madrid.com/fr, où vous trouverez une sélection soignée d’appartements exclusifs à Salamanca, ainsi que d’autres propriétés de prestige à Madrid.