En el corazón del barrio de Salamanca, en una tranquila calle residencial próxima al Parque del Retiro, se encuentra este singular ático dúplex ubicado en una elegante finca clásica con entrada señorial y elementos originales de gran valor arquitectónico, como sus vidrieras y el emblemático ascensor de jaula.
Se trata de una propiedad orientada exclusivamente a particulares con ganas de reformar y diseñar su vivienda desde cero, creando un ático único y totalmente personalizado en una de las zonas más cotizadas de Madrid.
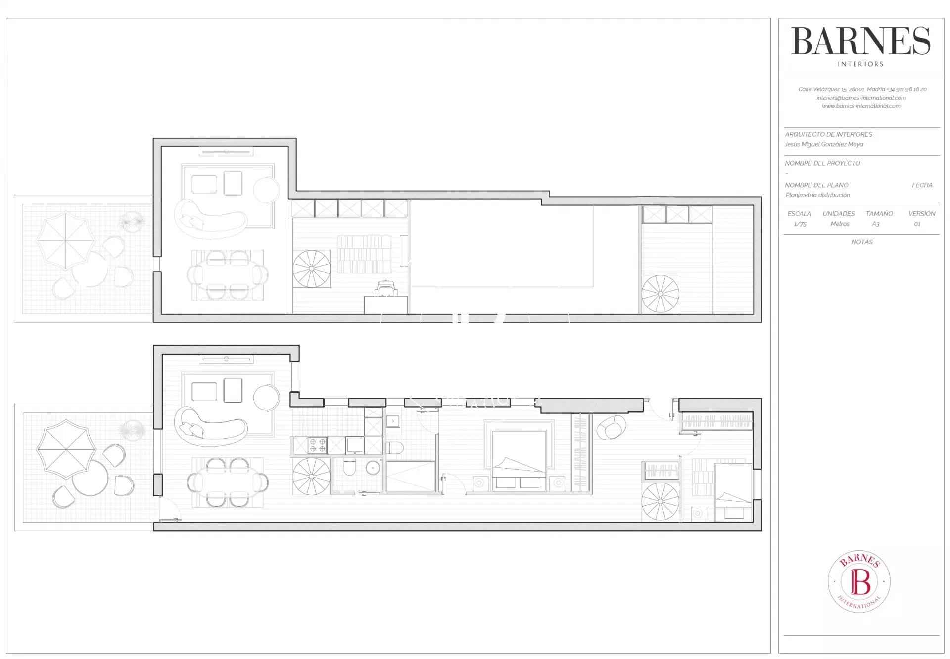
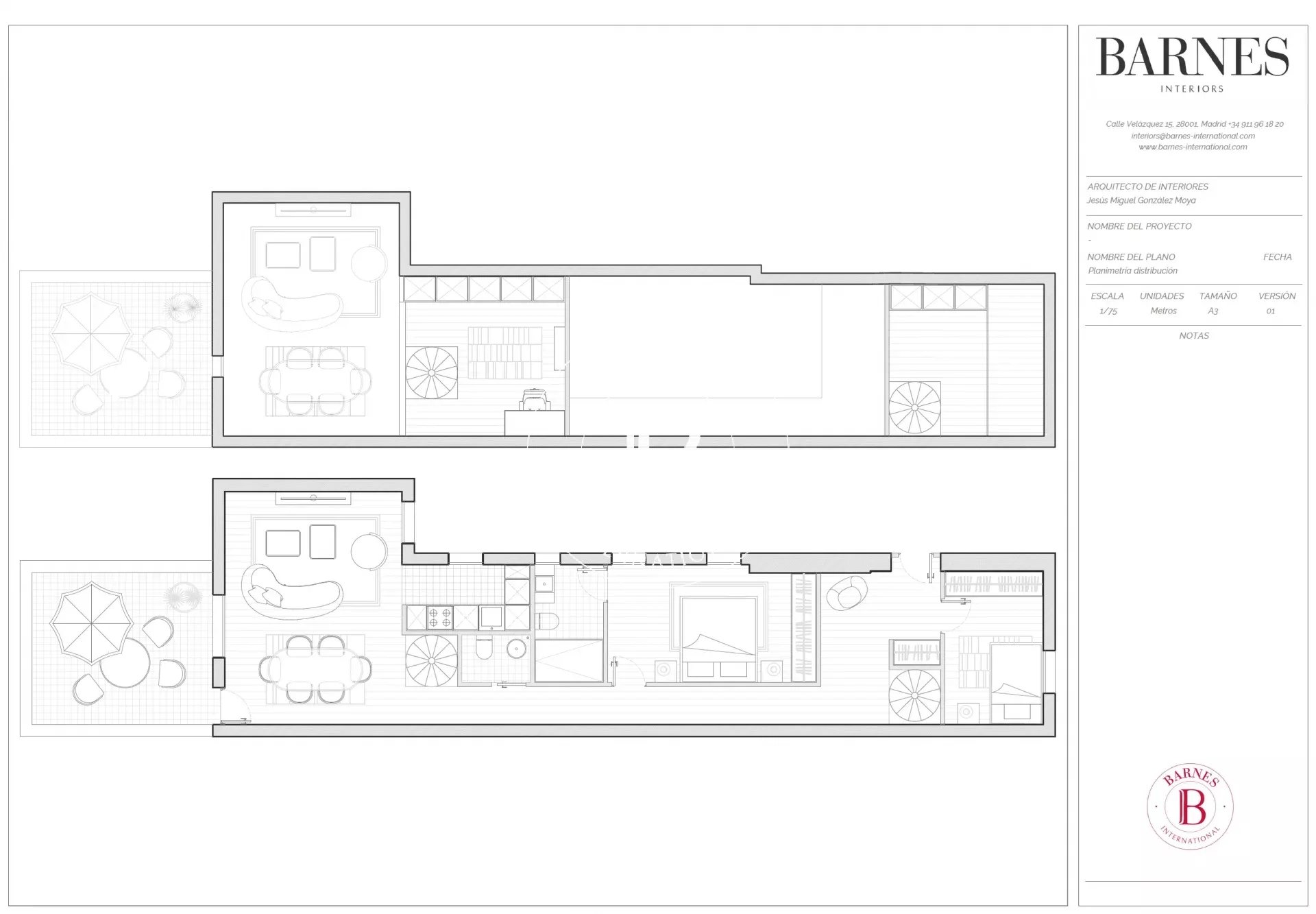
La vivienda destaca por su gran altura de techos y su configuración en doble altura, características estructurales que aportan amplitud y ofrecen múltiples posibilidades de redistribución. Las ventanas Velux integradas en la cubierta favorecen la entrada de luz natural, reforzando la sensación de espacio y permitiendo plantear un proyecto de reforma con gran potencial.
Actualmente dispone de tres dormitorios, con un dormitorio principal con baño en suite y vestidor, además de un segundo baño completo. La vivienda cuenta también con una agradable terraza orientada al este, perfecta para disfrutar de la luz natural y de un espacio exterior privado en plena ciudad.
La planta superior alberga una habitación adicional y varios espacios destinados a salón y almacenaje. Gracias a su volumen y altura, este nivel ofrece un enorme potencial de transformación: puede convertirse en un espectacular espacio diáfano de doble altura, ampliarse o redistribuirse completamente para adaptarse al proyecto del futuro propietario.
Por su configuración estructural, su altura excepcional y sus amplias posibilidades de reforma, esta propiedad representa una oportunidad única para particulares que deseen crear un ático a medida y revalorizar un inmueble singular en el barrio de Salamanca.