BARNES Madrid vende este elegante apartamento de 129 m², completamente reformado y amueblado, situado el distrito de Chamberí, barrio de Arapiles.
Ha sido diseñado para ofrecer el máximo confort tanto en estancias cortas como prolongadas. Su distribución funcional y acogedora incluye una amplia sala de estar ideal para recibir visitas o relajarse, junto a una moderna cocina abierta, equipada con electrodomésticos de alta gama que elevan la experiencia del día a día.
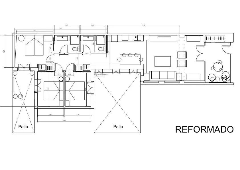
La exclusiva vivienda dispone de tres dormitorios: el principal dispone de baño en suite, mientras que los otros dos, de estilo gemelo, comparten un segundo baño completo. Puede alojar cómodamente hasta seis personas, convirtiéndola en una opción versátil tanto para uso residencial como para inversión.
Se encuentra actualmente en rentabilidad con una atractiva retorno del 5% anual, gracias a un contrato de alquiler vigente de 7 años (con 5 años de obligado cumplimiento), a razón de 5.000 €/mes (60.000 €/año), lo que lo convierte en una oportunidad excepcional para inversores que buscan un activo premium con ingresos garantizados desde el primer día.
El barrio de Arapiles destaca por ser una zona muy bien comunicada, con una vibrante oferta gastronómica, tiendas de autor, espacios culturales y zonas verdes. Arapiles combina el encanto tradicional de Chamberí con una energía joven y cosmopolita.
Para más información, puede consultar nuestra página web https://www.barnes-madrid.com/es, donde encontrará una cuidada selección de pisos exclusivos en Chamberí, así como consultar otras viviendas premium en Madrid similares.