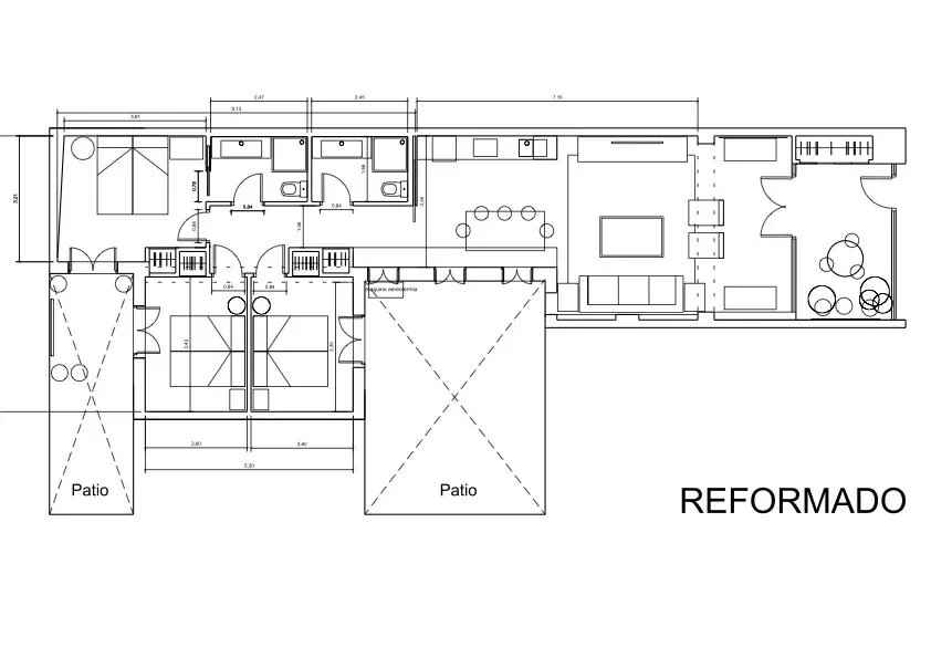
BARNES Madrid vend cet élégant appartement de 129 m², entièrement rénové et meublé, situé dans le district de Chamberí, quartier d'Arapiles.
Il a été conçu pour offrir un confort optimal, tant pour des séjours courts que prolongés. Sa distribution fonctionnelle et chaleureuse comprend un vaste salon, idéal pour recevoir ou se détendre, ainsi qu'une cuisine américaine moderne équipée d'appareils électroménagers haut de gamme qui rehaussent l'expérience quotidienne.
Ce bien d’exception dispose de trois chambres : la principale avec salle de bains en suite, et deux autres, de style jumeau, partageant une seconde salle de bains complète. Il peut accueillir confortablement jusqu’à six personnes, ce qui en fait une option polyvalente tant pour un usage résidentiel que pour un investissement.
Il est actuellement loué avec une rentabilité annuelle attractive de 5 %, grâce à un contrat de location en cours de 7 ans (dont 5 ans obligatoires), à raison de 5.000 €/mois (60.000 €/an), une opportunité exceptionnelle pour les investisseurs à la recherche d’un bien premium avec des revenus garantis dès le premier jour.
Le quartier d’Arapiles est très bien desservi et offre une scène gastronomique dynamique, des boutiques de créateurs, des lieux culturels et des espaces verts. Il allie le charme traditionnel de Chamberí à une énergie jeune et cosmopolite.
Pour plus d’informations, vous pouvez consulter notre site internet https://www.barnes-madrid.com/es, où vous trouverez une sélection soignée d’appartements exclusifs à Chamberí ainsi que d'autres biens de prestige à Madrid.