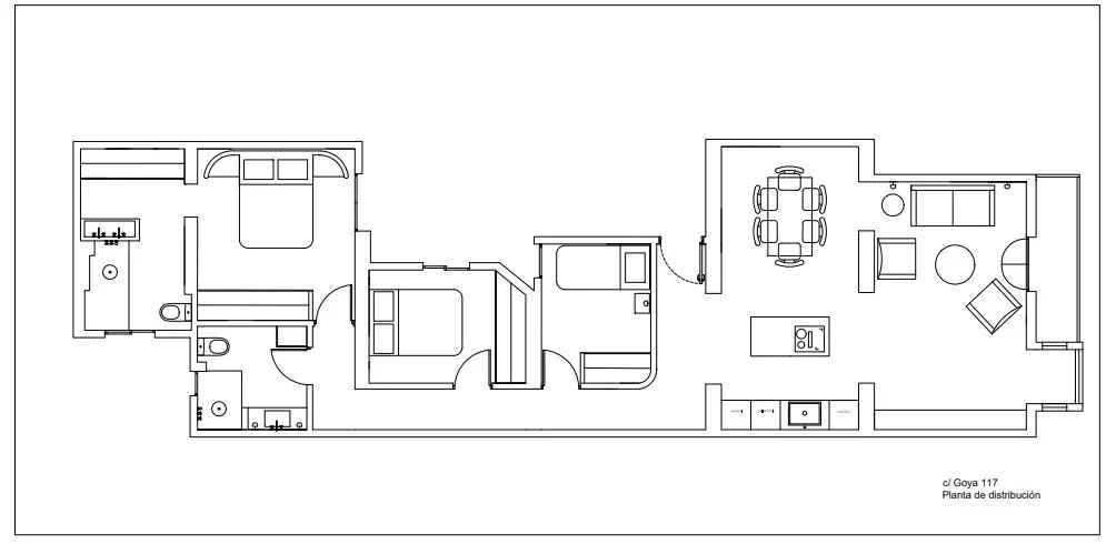
Idéalement située sur l’une des avenues les plus prestigieuses de Madrid, cette élégante résidence de trois chambres et deux salles de bains allie le charme classique des immeubles historiques à une rénovation contemporaine intégrale, prête à emménager.
La partie jour se compose d’un vaste salon-salle à manger baigné de lumière naturelle grâce à ses grandes baies vitrées donnant accès au balcon. Les finitions en bois et la menuiserie sur mesure apportent chaleur et raffinement, créant une atmosphère à la fois moderne et accueillante.
La cuisine ouverte, parfaitement intégrée à l’espace de réception, est équipée d’électroménagers haut de gamme et de matériaux nobles, alliant fonctionnalité et élégance.
La partie nuit comprend trois chambres, toutes dotées de placards intégrés et d’un design raffiné. La suite parentale dispose de sa propre salle de bains, tandis que les deux autres se partagent une salle de bains complète, toutes deux réalisées avec des matériaux de première qualité et une robinetterie design.
Parquet en chevrons, moulures classiques et éclairage soigneusement étudié subliment le caractère de ce bien, où tradition et modernité s’unissent à la perfection.
Une opportunité rare d’emménager dans un appartement neuf en plein cœur du quartier de Salamanca, à deux pas des meilleures boutiques, restaurants et services de Madrid.