BARNES Madrid présente cet appartement de 200 m², entièrement rénové et meublé, situé dans l'un des quartiers les plus prestigieux de la capitale, dans les environs du quartier de Jerónimos, à côté du parc du Retiro.
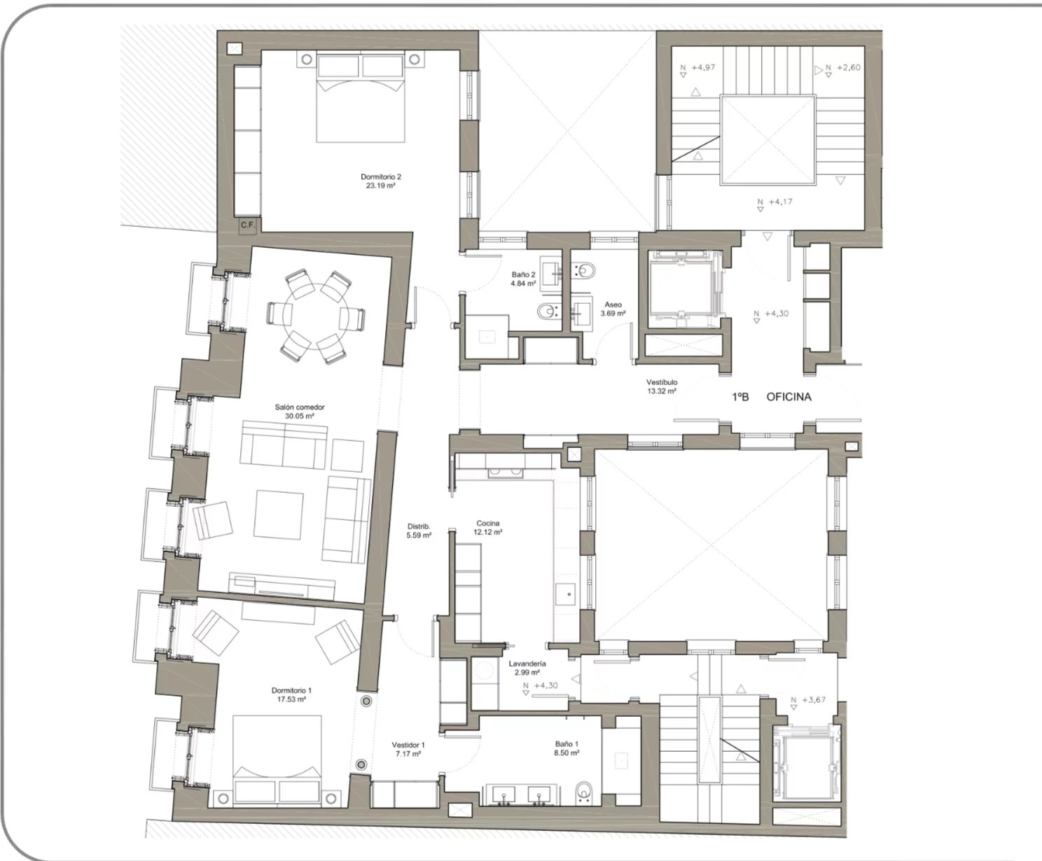
Le logement se compose d'un grand salon-salle à manger, d'une cuisine séparée, de deux chambres spacieuses avec salle de bains attenante, d'un WC d'invites et d'un espace buanderie indépendant très pratique. Il dispose de quatre balcons donnant sur la rue, qui apportent une excellente luminosité, du caractère et une agréable connexion avec l'extérieur, renforçant la sensation d'espace et d'élégance dans toutes les pièces.
La cuisine est entièrement équipée et a été conçue comme un espace contemporain, fonctionnel et sophistiqué. La rénovation complète a été réalisée récemment avec des matériaux de haute qualité, en soignant chaque détail pour offrir un maximum de confort, d'efficacité et un style raffiné.
L'immeuble dispose d'un service de conciergerie 24 heures sur 24 et d'espaces communs haut de gamme, parmi lesquels une salle de sport, un sauna, un espace gastronomique pour les réunions privées et une cave à vin individuelle pour chaque appartement. La propriété comprend également un débarras d'environ 5 m².
Le loyer comprend les charges de copropriété, qui comprennent le service de conciergerie, l'accès à la salle de sport et l'entretien des parties communes.
Le quartier de Los Jerónimos est synonyme de qualité de vie et d'exclusivité. Ses larges avenues, ses bâtiments emblématiques, son offre culturelle de premier ordre, ses excellents restaurants et ses magnifiques liaisons de transport en font l'un des quartiers résidentiels les plus prisés de Madrid. Un environnement élégant et calme, idéal pour ceux qui souhaitent vivre au cœur de la ville avec le Retiro comme jardin privé.