Penthouse exclusif et tranquille dans un immeuble représentatif avec une excellente situation dans le quartier de Castellana, district de Salamanca. La propriété a une superficie d'environ 200 m2, y compris une terrasse avec une vue magnifique sur la Sierra. La propriété a été entièrement rénovée et est prête à être habitée. La qualité de la rénovation et la luminosité du bien dans toutes ses pièces sont à souligner.
Il s'agit d'un quartier résidentiel, calme, très bien desservi, offrant toutes sortes de services : écoles, hôpitaux, musées, restaurants, écoles de commerce, ambassades.
La propriété dispose du chauffage central, de l'air conditionné et d'une bonne isolation thermique et acoustique dans toute la maison. Les sols sont ceux d'origine, en bois tropical. Il y a un grand nombre d'armoires entièrement équipées. Portes d'entrée renforcées. Téléphone d'entrée physique et automatique. La maison dispose également d'une salle de stockage et de deux places de parking incluses dans le prix, l'une d'entre elles étant directement accessible depuis l'ascenseur de service.
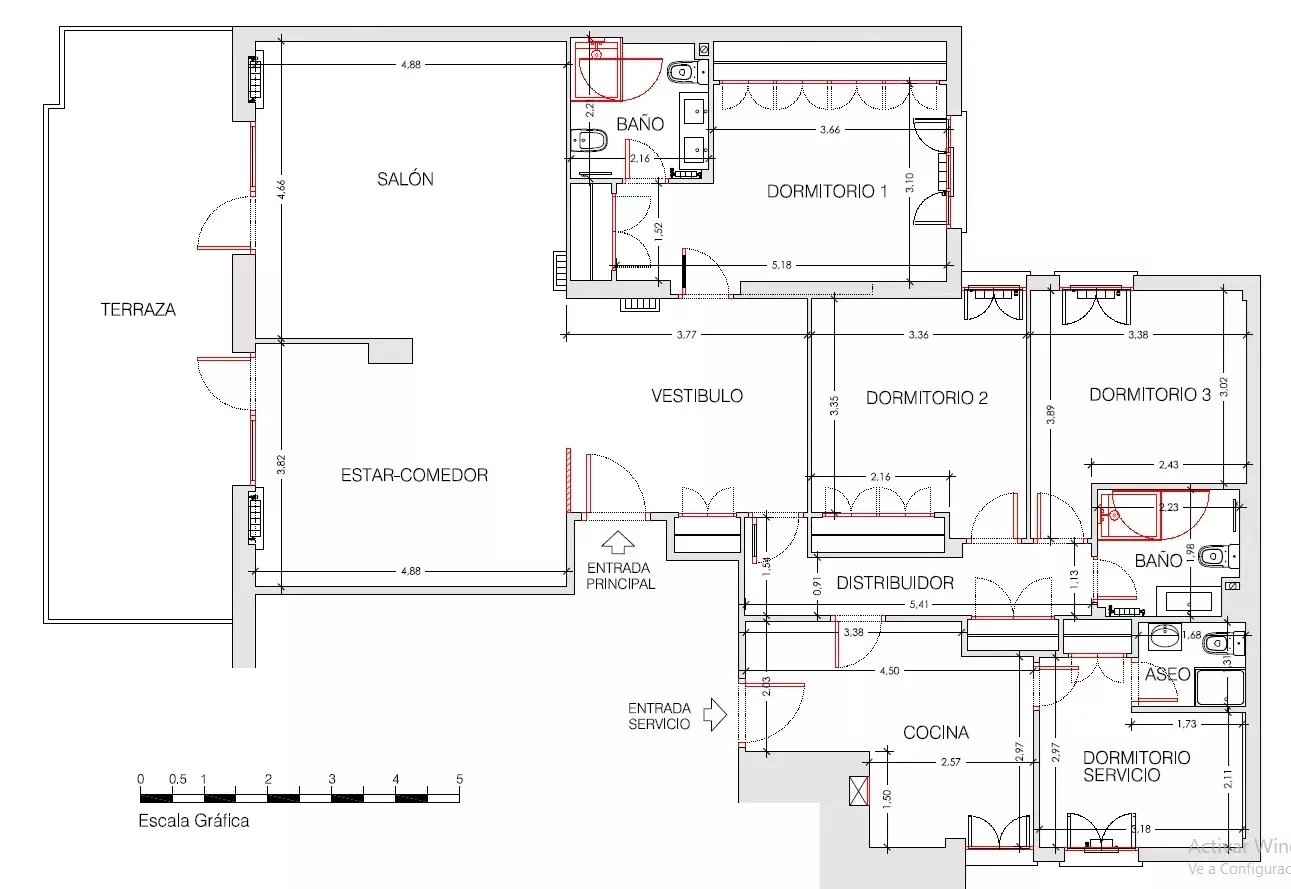
La chambre principale avec salle de bain en suite ; deux chambres secondaires partageant une deuxième salle de bain et une quatrième chambre de service avec salle de bain incluse.
La cuisine est entièrement équipée avec des appareils neufs tels que lave-linge, sèche-linge, lave-vaisselle, four, micro-ondes, double réfrigérateur, etc.
La propriété est louée UNIQUEMENT et EXCLUSIVEMENT à long terme comme résidence permanente pour un minimum de 3 ans.
La vidéo de la propriété est disponible sur le site web de BARNES MADRID avec le numéro de référence 85841628.
Les images présentées ont été créées par BARNES Interiors grâce au home staging virtuel afin d’illustrer le potentiel du bien. Il est important de noter que le logement est loué non meublé. BARNES Interiors propose également des services de décoration d’intérieur pour cette propriété moyennant un coût supplémentaire.