BARNES Madrid présente un logement unique au cœur de la capitale, à quelques pas de l'emblématique Puerta del Sol et de la Gran Vía. Il s'agit d'une magnifique opportunité tant pour ceux qui recherchent une résidence en plein centre historique que pour les investisseurs qui apprécient la forte demande locative dans ce quartier animé de Madrid.
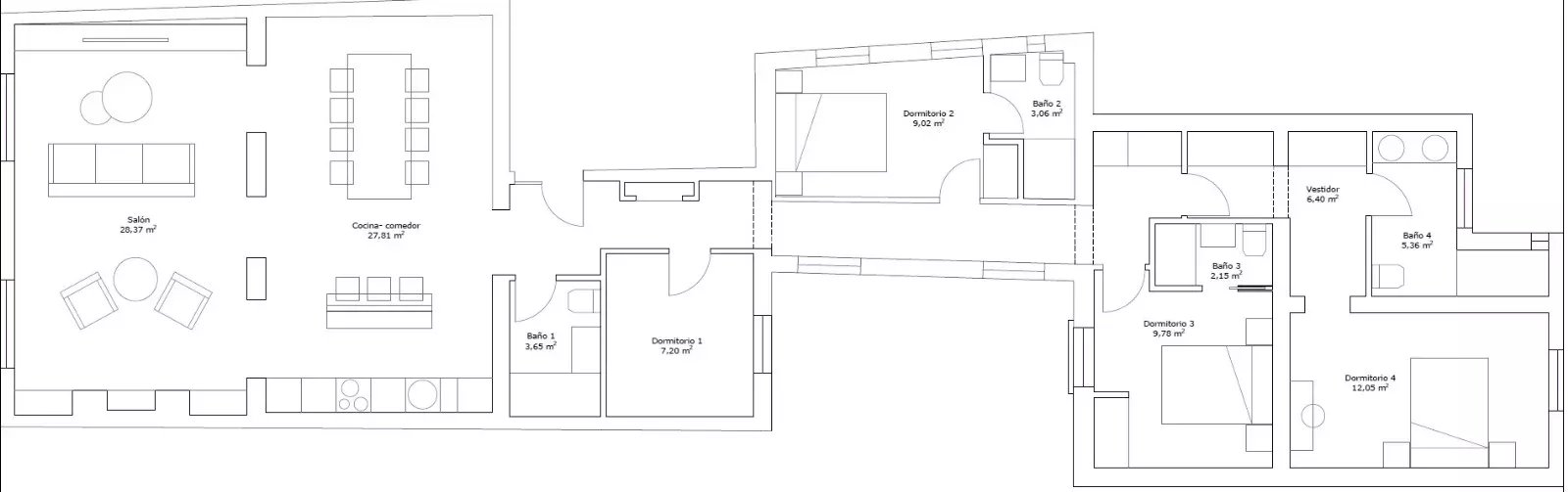
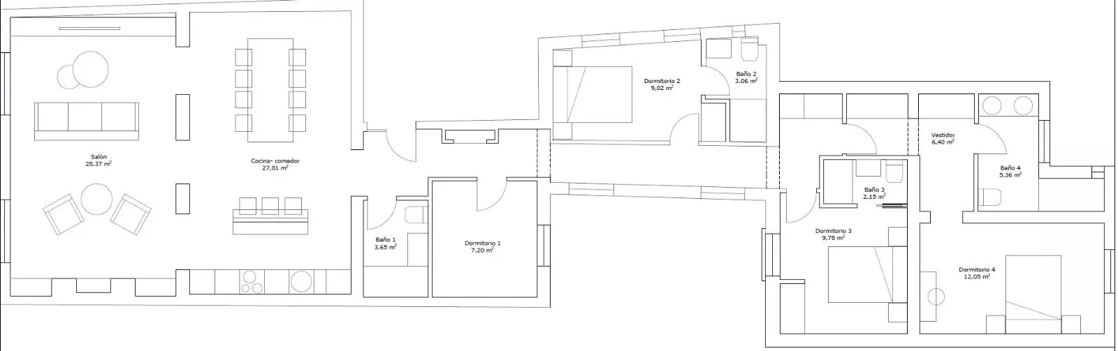
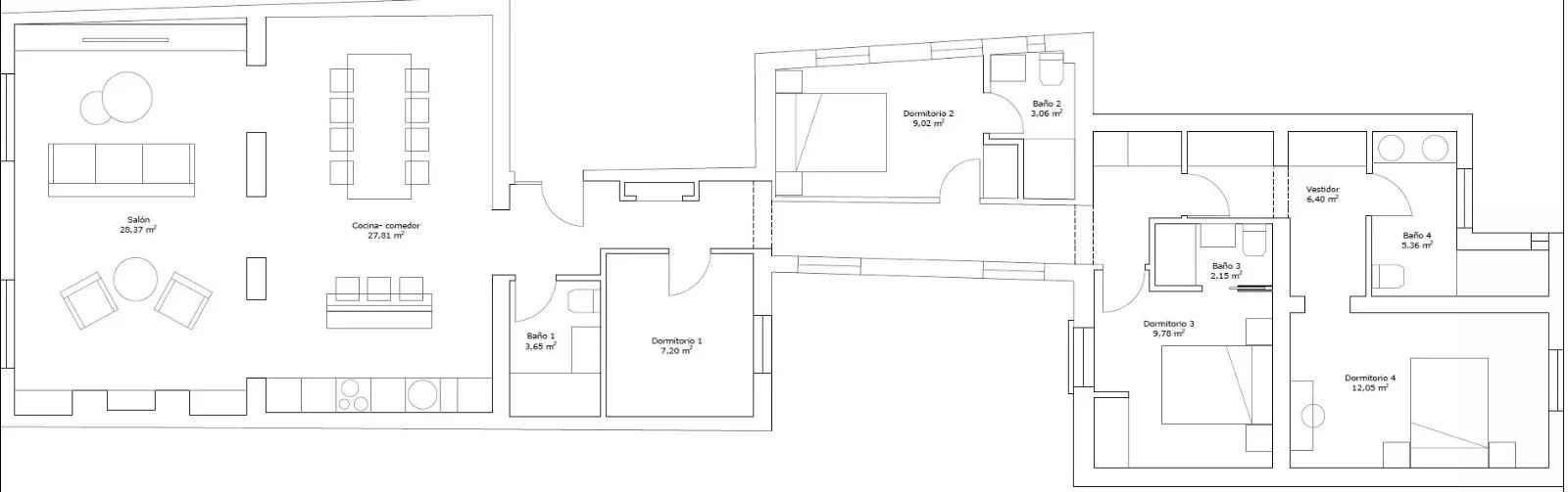
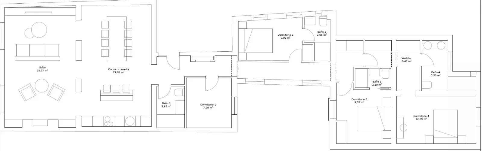
Situé au troisième étage d'un immeuble classique rénové, le bien se distingue par son élégance et la luminosité apportée par ses deux balcons donnant sur la rue. L'appartement a été rénové avec des matériaux de première qualité, en soignant chaque détail pour garantir fonctionnalité et confort. Il dispose d'un grand salon avec une cuisine design intégrée, de quatre chambres aux dimensions généreuses, de quatre salles de bains complètes en suite et d'un WC supplémentaire, ce qui lui confère une grande indépendance et un grand confort. La climatisation par conduits et les menuiseries haut de gamme garantissent une excellente performance énergétique et une atmosphère confortable tout au long de l'année.
L'environnement est des plus privilégiés : à quelques mètres se trouvent les principaux axes commerciaux et culturels de Madrid, des théâtres, des restaurants à la mode, des musées et une connexion imbattable avec le réseau de transports publics qui facilite l'accès à n'importe quel point de la ville. Vivre ici, c'est être au cœur de la vie madrilène, avec l'énergie du centre historique combinée au confort d'une maison moderne et parfaitement équipée.