BARNES Madrid présente ce bel appartement de design contemporain situé à quelques pas de la Glorieta de Ruiz Jiménez, entre les quartiers recherchés d’Almagro, Chamberí et Malasaña, l’un des secteurs les plus dynamiques du centre de Madrid.
Disponible pour des séjours temporaires de 6 à 11 mois, avec charges comprises, ce lumineux appartement de 128 m² se trouve dans un immeuble classique et a fait l’objet d’une rénovation complète avec des matériaux de haute qualité et un design contemporain élégant.
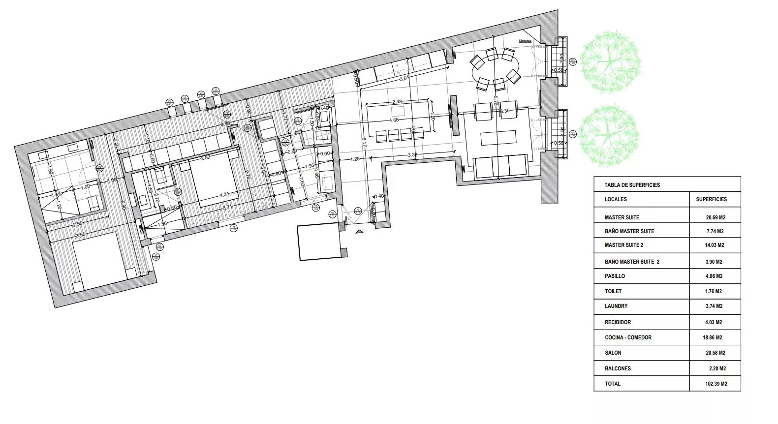
L’espace de vie comprend un grand salon-salle à manger avec deux balcons donnant sur la rue, dont l’un est vitré et aménagé en agréable bow-window offrant une vue sur les arbres de la place et une belle luminosité naturelle.
La cuisine ouverte avec îlot central, conçue par Línea 3, est entièrement équipée avec des électroménagers Bosch intégrés haut de gamme et de nombreux espaces de rangement. Un toilette invités ainsi qu’un espace buanderie indépendant complètent cette zone.
L’espace nuit propose deux chambres en suite, chacune avec placards intégrés sur mesure et salles de bains élégantes avec revêtements Porcelanosa et grandes douches.
L’appartement dispose également de climatisation gainable avec réglage indépendant par pièce, chauffage individuel au gaz, fenêtres à double vitrage, sols Porcelanosa dans les pièces de vie et parquet en bois naturel dans les chambres.
Sa situation privilégiée à proximité de la Glorieta de Ruiz Jiménez et de la station de métro San Bernardo offre une excellente connexion avec le reste de la ville, dans un environnement animé de restaurants, cafés, commerces et lieux culturels.
Un appartement lumineux, élégant et parfaitement équipé pour profiter d’un séjour temporaire au cœur de Madrid.