Barnes Madrid présente ce superbe appartement situé au cœur du très prisé quartier de Recoletos, à quelques pas du parc du Retiro et de la rue Velázquez.
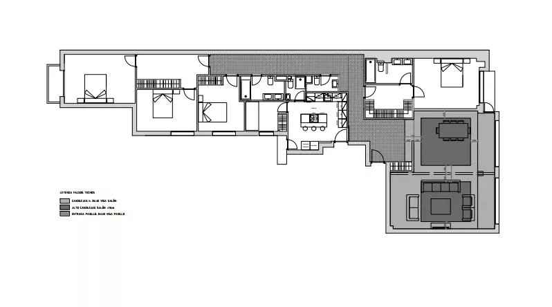
Situé au cinquième étage d’un immeuble de standing avec ascenseur, ce bien exclusif de 240 m² se distingue par sa luminosité, ses volumes généreux et son élégance discrète. Les hauts plafonds, les parquets, l’éclairage indirect au plafond et une distribution fluide des espaces créent une atmosphère à la fois raffinée et accueillante.
L’entrée spacieuse avec vestiaire mène à un vaste salon organisé en trois espaces distincts — séjour, salle à manger et salon de lecture — avec accès direct à une terrasse ensoleillée agrémentée de jardinières. De grandes baies vitrées et une orientation idéale assurent une lumière naturelle abondante tout au long de la journée.
La cuisine indépendante, entièrement équipée avec des appareils électroménagers haut de gamme, comprend un îlot central, de nombreux rangements, une buanderie séparée, une chambre de service avec salle de bains attenante, ainsi qu’un accès de service avec monte-charge.
La partie nuit se compose de quatre chambres doubles. La suite parentale, spacieuse et lumineuse, bénéficie d’un dressing ouvert, d’un accès à la terrasse et d’une élégante salle de bains en marbre. Une deuxième chambre dispose également d’une terrasse privée. Les deux autres chambres partagent un grand dressing et une salle de bains complète. Des toilettes invités complètent l’ensemble.
Climatisation dans toutes les pièces, chauffage central et concierge à demeure. Un bien d’exception dans l’un des quartiers résidentiels les plus recherchés de Madrid, à proximité des boutiques de luxe, restaurants, cafés, musées et parfaitement desservi par les transports en commun.
Nous vous invitons à venir le découvrir, ainsi qu’à consulter d’autres biens d’exception proposés par Barnes Madrid.